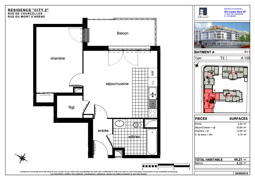
APPARTEMENT 3 PIÈCES AVEC TERRASSE et JARDIN
Ayez le coup de c?ur pour cet appartement en rez de jardin , situé sur le secteur très recherché de Clairmarais !
Il se compose comme suit :
Une entrée avec placard desservant une pièce de vie lumineuse ouverte sur l'extérieur, une cuisine meublée et équipée,.
Un coin nuit vous offrant deux chambres au calme, une salle de douches ainsi que des toilettes indépendants.
Bénéficiez d'espaces extérieurs pour gagner en confort avec une terrasse et un jardin exposés sud ouest.
Côté stationnement, vous disposerez d'une place de parking couverte, accessible par l'ascenseur.
Réf. : 2291-12973
Côté transports en commun, on trouve, à deux pas, huit lignes de bus, la gare Reims centre, ainsi que la ligne de tramway (ST THOMAS).
Les informations sur les risques auxquels ce bien est exposé sont disponibles sur le site Géorisques : www.georisques.gouv.fr.
Pour plus de renseignement sur cet appartement, n'hésitez à me contacter :
David BUGNOT EI
RSAC Reims : 515 119 592
06.19.01.12.46
d.bugnot@redoute-immobilier.fr
70 m²
3 071 €
25 m²
2
1
1
2018
Équipée
Oui
Consommations énergétiques
Logement économe
93
Logement énergivore (kWhEP/m2/an)
Émissions de gaz à effet de serre
Faible émission de GES
18
Forte émission de GES(kgeqCO2/m2/an)
Contact David BUGNOT
Contacter gratuitement à l'aide du formulaire ci-dessous.