RENNES - quartier Jeanne d'Arc - Appartement 2 pièces Sud Ouest - 7ème et dernier étage - ascenseur - terrasse de 40.43m² - stationnement
Rennes 35000
0
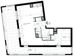
RENNES - quartier Jeanne d'Arc - Appartement 2 pièces 57.38m² Sud Ouest - 7ème et dernier étage - ascenseur - terrasse de 40.43m² - stationnement. Prix taux de tva 5.5% - Achat en principal - conditions nous consulter. Idéalement situé dans le quartier de Jeanne d'Arc, cet élégant appartement de deux pièces bénéficie d'un emplacement privilégié à proximité immédiate du métro, offrant un accès rapide au centre-ville (Sainte-Anne en 10 minutes, Gare de Rennes en 15 minutes). A quelques pas des commerces, écoles et transports en commun, il se trouve également à moins de 500 mètres des parcs, parfaits pour vos instants de détente. Niché au 7ème et dernier étage avec ascenseur, ce spacieux appartement de 57,38 m², exposé sud-ouest, séduit par sa luminosité et ses volumes généreux. Il se compose d'une entrée avec placard, d'un vaste séjour avec cuisine ouverte, prolongeant l'espace de vie vers une magnifique terrasse de 40,43 m². Une chambre avec placard, une salle d'eau et wc indépendant complètent ce bien. Un stationnement sécurisé en sous-sol est inclus. Enfin, le réseau de chaleur urbain assure un chauffage à la fois économique et écologique. Contactez-nous dès maintenant pour en savoir plus et réserver votre futur appartement ! Prix promoteur - Les informations sur les risques auxquels ce bien est exposé sont disponibles sur le site Géorisques : www.georisques.gouv.fr. Photos non contractuelles - Suggestions d'aménagements Copropriété de 43 lots - dont 43 lots habitation. (Pas de procédure en cours). Charges annuelles : 820 euros.