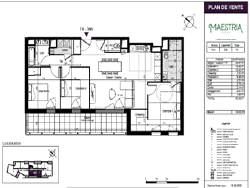
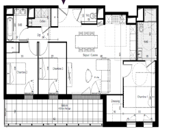
Hélène PARISOT , conseillère en immobilier Noovimo, vous propose cet appartement T4 de 85.3 m2 sur Challans exposé SUD. Il comprend une entrée avec placard, une pièce de vie de 33.97m2 avec un espace cuisine, une suite parentale avec dressing, une salle d'eau avec wc, deux chambres avec un accés balcon, une salle de bain, un cellier et un wc. place de parking interieur. De votre futur appartement, vous pourrez profiter d'un cadre de vie en centre ville de Challans, donnant sur un coeur d'îlot végétalisé et dégagé Toutes commodités à proximité : les halles, les commerces, l hôtipal et la gare. La résidence sera livrée au troisieme trimestre 2023. Programme RT 2012 Prix promoteur 349 500EUR Votre agent indépendant NOOVIMO inscrit au RSAC de le roche sur yon no 841 556 533 - Annonce rédigée et publiée par un Agent Mandataire -
85.3 m²
4 097 €
15 m²
33 m²
4
3
1
1
2
3 sur 3
2023
Sud
Ouest
1 (15 m²)
Oui
1
Oui
Contact PARISOT
Contacter gratuitement à l'aide du formulaire ci-dessous.