Saint-Alban proche Aucamville - Appartement T3 de 61m2
Saint-Alban 31140
0
Honoraires à la charge du vendeur.
Saint-Alban, à deux pas d'Aucamville Appartement T3 de 61m2 - vendu libre d'occupation
Situé à Saint-Alban, dans une résidence calme et sécurisée, proche des transports en commun et commodités, nous vous proposons cet appartement T3 disponible dès maintenant pour de la résidence principale comme de l'investissement locatif.
*Aucamville accessible en moins de 10 minutes, zone commerciale de Fenouillet à proximité, centre ville Toulousain à 25 minutes !
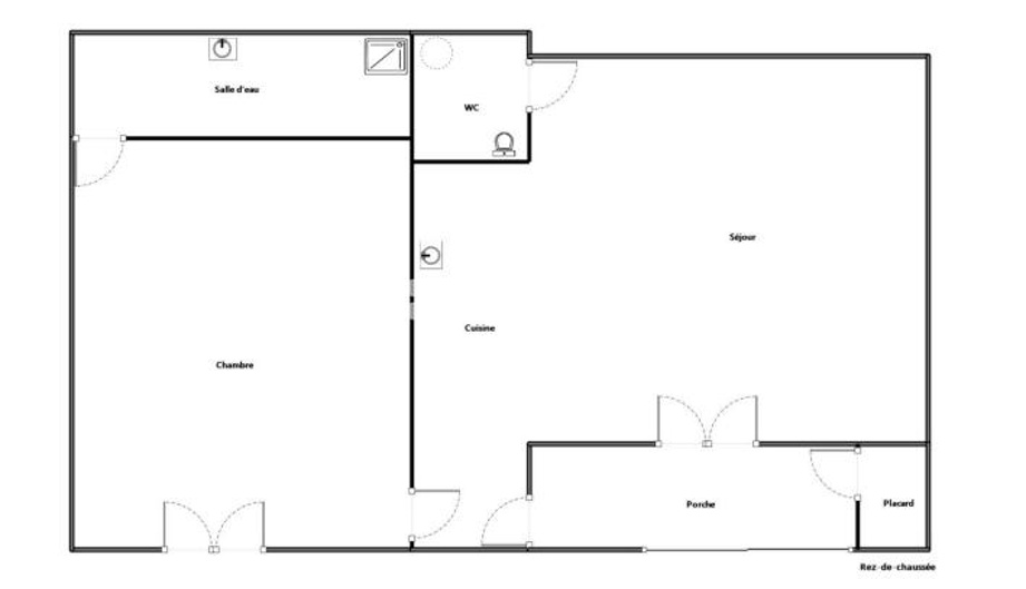
En rez-de-chaussée et d'une surface de 60,82m2, il est agencé comme suit : Une entrée avec placard mène aux différentes pièces de l'appartement dont un séjour avec cuisine et placard donnant sur une agréable terrasse de plus de 12m2 idéalement exposée sud pour profiter des beaux jours ! Côté nuit, nous retrouvons deux chambres dont la première fait près de 12m2 avec placard, la seconde de 9m2, une salle d'eau et un WC indépendant. Appartement avec accès PMR. À ce lot s'ajoutent 2 emplacements de stationnement aériens.
Éléments financiers : - Charges de copropriété : environs 120 /mois eau froide comprise - Taxe foncière : 923 /an dont 126 de TOM Honoraires à la charge du vendeur.
Pour tout renseignement complémentaire, n'hésitez pas à nous joindre par téléphone !
Honoraires à la charge du vendeur. Dans une copropriété de 212 lots. Aucune procédure n'est en cours. DPE en cours. Les informations sur les risques auxquels ce bien est exposé sont disponibles sur le site Géorisques : georisques.gouv.fr.
60.81 m²
2 286 €
26 m²
3
2
1
1 (séparé)
120.00 € / mois
2015
Sud
2
1
Oui (212 lots)
Consommations énergétiques
Logement économe
85
Logement énergivore (kWhEP/m2/an)
Émissions de gaz à effet de serre
Faible émission de GES
15
Forte émission de GES(kgeqCO2/m2/an)
Contact C2i SUD OUEST
Contacter gratuitement à l'aide du formulaire ci-dessous.