Saint Loup: Maison plain pied 80 m2, piscine, terrasse, jard
Marseille 13010
0
Honoraires à la charge du vendeur.
** Visite virtuelle 360 degrés disponible sur simple demande **
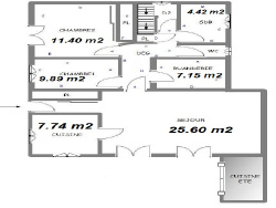
Vous rêvez d'une maison abordable avec une vue imprenable, et les travaux ne vous effraient pas ? Les escaliers ne sont pas un obstacle pour vous ? Alors, ne tardez pas à contacter Louis 'Le Québécois' pour discuter de ce projet unique ! Située au fond d'une impasse calme, cette maison de plain pied 80 m2, entièrement à rénover, vous attend. En rez-de-chaussée, la propriété se compose actuellement de deux chambres, d'une cuisine d'été à aménager, et d'un ancien studio. Une grande piscine, également à rénover, avec une profondeur progressive, complète ce bien. Vous accédez à la propriété par un escalier attenant à un grand garage de 56 m2, suivi d'un escalier et de quelques restanques menant à la maison. La villa offre également des combles partiellement aménagés, donnant accès à une terrasse sur le toit avec une vue dégagée à couper le souffle. La taxe foncière s'élève à 2 419 euros par an. Cette maison est l'endroit idéal pour s'installer avec votre petite famille. Si cette villa vous intéresse, votre agence immobilière (EIRL) Louis DANSEREAU est à votre disposition pour toute information supplémentaire. ** Les informations sur les risques auxquels ce bien est exposé sont disponibles sur le site Géorisques : www.georisques.gouv.fr ** Cette annonce vous est proposée par DANSEREAU Louis (EIRL) - EIRL - NoRSAC: 807661442, Enregistré à Greffe du tribunal de commerce de MARSEILLE - Annonce rédigée et publiée par un Agent Mandataire -
80 m²
5 613 €
25 m²
1200 m²
4
3
1
1
16/07/2024
1880
Ouest
4
1
2
Oui
Consommations énergétiques
Logement économe
437
Logement énergivore (kWhEP/m2/an)
Émissions de gaz à effet de serre
Faible émission de GES
14
Forte émission de GES(kgeqCO2/m2/an)
Contact Louis DANSEREAU
Contacter gratuitement à l'aide du formulaire ci-dessous.