Goodshowcase

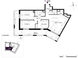
Vente appartement 4 pièces
505 500 €

Annonces similaires

Vente appartement

Saint-Malo 35400 - 0

440 000 €

...Vous y trouverez cet appartement T4 de 83 m2 comprenant : Une entré avec placard, 3 chambres dont...

Voir l'annonce

Vente appartement

Saint-Malo 35400 - 0

494 550 €

...Un GARAGE fermé sécurisé...

Voir l'annonce

Vente appartement

Saint-Malo 35400 - 0

499 000 €

...Le confort du neuf avec le charme de l'ancien : la façade en pierre de l'ancien Palais de Justice...

Voir l'annonce

Vente appartement

Saint-Malo 35400 - 0

515 000 €

...Emplacement central : A pied : 8 min gare, 15 min plage des Bas Sablons/St Servan, 18 min Sillon,...

Voir l'annonce

Vente appartement

Saint-Malo 35400 - 0

425 000 €

...Emplacement central : A pied : 8 min gare, 15 min plage des Bas Sablons/St Servan, 18 min Sillon,...

Voir l'annonce