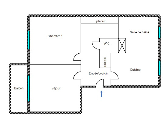
Centre-ville SAINT-RAPHAEL ! A pied des commerces et des plages, appartement 3 pièces de 62 m2 sité au dernier étage avec ascenseur. Il se compose : d'une entrée, un séjour ouvrant sur un balcon de 10 m2 environ, une cuisine indépendante, deux chambres, une salle de bains, wc. Une cave complète le tout. POUR PLUS D'INFORMATIONS CONTACTEZ L'AGENCE AU 04.83.12.04.40 CABINET GMJ IMMOBILIER A VOS COTES DEPUIS PLUS DE 60 ANS. Les informations sur les risques auxquels ce bien est exposé sont disponibles sur le site Géorisques : www.georisques.gouv.fr
62 m²
3 145 €
10 m²
15 m²
3
2
1
1
4 sur 4
125 € / mois
1977
Est
1 (10 m²)
Oui
Oui
Oui
1
Oui (30 lots)
Consommations énergétiques
Logement économe
192
Logement énergivore (kWhEP/m2/an)
Émissions de gaz à effet de serre
Faible émission de GES
7
Forte émission de GES(kgeqCO2/m2/an)
Contact Gmj Immobilier
Contacter gratuitement à l'aide du formulaire ci-dessous.