Rare : une rénovation d'un bâtiment historique de grand standing. Pierre de taille, grandes surfaces vitrées, plafonds jusqu'à 4,5m, terrasses et loggias, jardin paysager.
En plein centre ville, à 5-10 min à pied du Port, de la Gare, du Centre des Congrès, des Galeries Lafayette et tous commerces.
Livré, non habité et visitable.
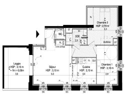
Spacieux T3 avec loggia privative 15m2 sur Cour, Calme. 3,1m de hauteur sous plafond. Cave et un parking inclus dans le prix.
Frais de notaire classiques.
Nous Consulter.
Honoraires à la charge du vendeur. Classe énergie C, Classe climat A Montant estimé des dépenses annuelles d'énergie pour un usage standard : entre 660.00 et 930.00 sur les années 2021, 2022 et 2023 (abonnements compris). Les informations sur les risques auxquels ce bien est exposé sont disponibles sur le site Géorisques : georisques.gouv.fr.
Votre conseiller MON BIEN A LA MER : Gérant - .fr MON BIEN A LA MER Carte T CPI 2201 2018 000 025 040 RCP ACM IARD B1 7025278
70.4 m²
5 909 €
3
2
1
1
2 sur 3
Oui
1
Consommations énergétiques
Logement économe
110
Logement énergivore (kWhEP/m2/an)
Émissions de gaz à effet de serre
Faible émission de GES
3
Forte émission de GES(kgeqCO2/m2/an)
Contact mon bien à la mer
Contacter gratuitement à l'aide du formulaire ci-dessous.