L'agence 'MON BIEN A LA MER', spécialiste de l'immobilier neuf sur les côtes Bretonnes, vous présente :
Rare : une rénovation d'un bâtiment historique de grand standing. Pierre de taille, grandes surfaces vitrées, plafonds jusqu'à 4,5m, terrasses et loggias, jardin paysager.
En plein centre ville, à 5-10 min à pied du Port, de la Gare, du Centre des Congrès, des Galeries Lafayette et tous commerces.
Livré et visitable.
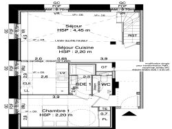
Spacieux T4bis en loft/duplex de 99m2 comprenant : - 1er niveau séjour 34m2 4,5m de hauteur sous plafond, chambre 12,5m2, salle d'eau, wc séparés, - 2è niveau : chambres 13,5-11,7m2, salle d'eau/wc, mezzanine - parking et deux caves inclus Volets roulants électriques, parquet contrecollé, carrelage/faience porcenalosa, menuiseries alu.... Frais de notaire classiques.
Nous Consulter.
Honoraires à la charge du vendeur. Classe énergie C, Classe climat A Montant estimé des dépenses annuelles d'énergie pour un usage standard : entre 1090.00 et 1530.00 sur les années 2021, 2022 et 2023 (abonnements compris). Les informations sur les risques auxquels ce bien est exposé sont disponibles sur le site Géorisques : georisques.gouv.fr.
Votre conseiller MON BIEN A LA MER : Gérant - .fr MON BIEN A LA MER Carte T CPI 2201 2018 000 025 040 RCP ACM IARD B1 7025278
Loft
99.5 m²
4 814 €
34 m²
4
3
2
2 (séparés)
1 sur 3
Oui
Consommations énergétiques
Logement économe
139
Logement énergivore (kWhEP/m2/an)
Émissions de gaz à effet de serre
Faible émission de GES
4
Forte émission de GES(kgeqCO2/m2/an)
Contact mon bien à la mer
Contacter gratuitement à l'aide du formulaire ci-dessous.