ST LAURENT DU VAR / Bord de mer / Port - Magnifique 3P avec
Saint-Laurent-du-Var 06700
0
Honoraires à la charge du vendeur.
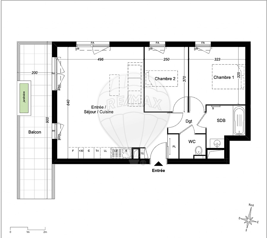
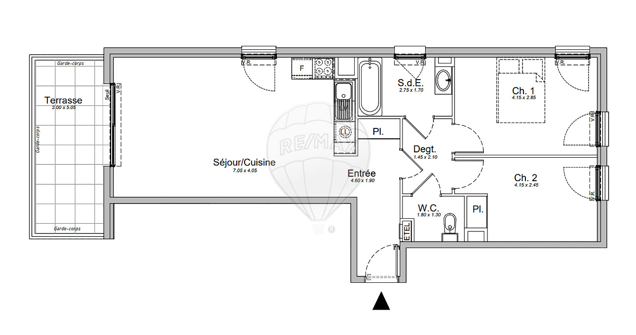
Bien RARE, en EXCLUSIVITE ! Idéalement situé à deux pas des plages et du Port de St Laurent du Var, de ses commerces et des transports en commun, en étage élevé de la résidence de standing neuve, SEA SIDE VIEW, splendide appartement neuf de type 3 Pièces (6 couchages max), tout juste livré et jamais occupé, d'une surface habitable Carrez de 59 m2. Cadre de vie exceptionnel, tout confort, traversant et lumineux, ce bien se compose d'une entrée avec placard intégré aménagé, un séjour avec cuisine américaine à équiper de plus de 23 m2 ouvrant sur une grande terrasse de 10 m2 orientée Sud/Est sans vis-à-vis, ouverte également sur la grande chambre, une seconde chambre avec placard intégré et aménagé, une salle de bains et un WC indépendant. Matériaux et prestations de qualité (marbre au sol, domotique, volets roulants électriques, double vitrage, portes sécurisées, vidéophone,...), Climatisation réversible intégrée dans tout l'appartement, Résidence de standing offrant: piscine à débordement sur le toit du même bâtiment, jardins paysagers, conciergerie connectée,... et répondant aux normes environnementales les plus récentes. Idéal en Résidence Principale mais aussi en pied-à-terre ou investissement locatif (Locations Saisonnières autorisées !) Le bien est vendu avec un emplacement de parking privatif en sous-sol de la résidence, inclus dans le prix. Bien soumis au statut de la copropriété. Nombre de lots: 176. Charges courantes annuelles estimées: 1.632 EUR . Honoraires agence inclus charge vendeur AZUR METROPOLE IMMOBILIER06 58 75 66 10
59 m²
7 966 €
23 m²
3
2
1
1
3 sur 7
136 € / mois
2025
Sud
Est
Oui
1
1
Oui
Oui
1
Oui
Oui
Oui
Oui
Oui (176 lots)
Consommations énergétiques
Logement économe
46
Logement énergivore (kWhEP/m2/an)
Émissions de gaz à effet de serre
Faible émission de GES
1
Forte émission de GES(kgeqCO2/m2/an)
Contact Azur Metropole Immobilier
Contacter gratuitement à l'aide du formulaire ci-dessous.