ST RAMBERT L'ILE BARBE - MAISON DE VILLE 5P + GARAGE
Lyon 69009
0
Honoraires à la charge du vendeur.
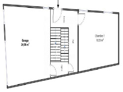
Au coeur du joli quartier de Saint-Rambert l'Ile Barbe, venez découvrir cette charmante maison de ville construite en 1846 sur 3 niveaux, d'une superficie de 134 m² Carrez. Elle se compose, au rez-de-chaussée, d'une entrée, une chambre/bureau et un garage de 24 m². Une belle cuisine aménagée et équipée ainsi qu'un séjour avec balcon complètent le premier niveau. Au dernier étage, vous trouverez une chambre parentale avec douche, baignoire et WC et bénéficiant d'une belle vue dégagée côté Saône, ainsi que 2 autres chambres, une salle de bains et WC.
Une petite cour vous permettra de profiter des rayons du soleil !
La façade et la toiture ont été refaites en 2018 et 2019. TF : 955 Prix de vente du bien : 490 000 honoraires d'agence inclus à la charge du vendeur. DPE (D) GES (D) Les informations sur les risques auxquels ce bien est exposé sont disponibles sur le site Géorisques : www.georisques.gouv.fr
Honoraires à la charge du vendeur. Classe énergie D, Classe climat D Montant estimé des dépenses annuelles d'énergie pour un usage standard : entre 2520.00 et 0 sur les années 2021, 2022 et 2023 (abonnements compris). Les informations sur les risques auxquels ce bien est exposé sont disponibles sur le site Géorisques : georisques.gouv.fr.