Vous souhaitez investir dans l'immobilier locatif sans avoir à vous soucier de la gestion ?
Ce bien en Résidence Affaires destiné uniquement à l'investissement, vous permet de profiter de revenus locatifs peu fiscalisés tout en vous constituant un patrimoine immobilier.
- 4.7% de rendement prévisionnel brut
- 7227.00 € HT de loyer annuel
- 0.00 € de charges de copropriétés annuelles
- 362.00 € de taxe foncière annuelle
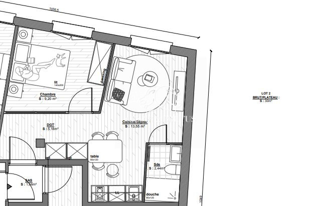
Le bien à vendre est un Studio d'une surface de 22.07 m², équipé et meublé, situé au niveau R+1 de la résidence Staycity Garibaldi à LYON et exploité par la société STAYCITY.
Idéalement située à Lyon, la résidence bénéficie d'un emplacement stratégique à proximité immédiate des commerces et du parc Blandan. À seulement 2 km de la colline de Fourvière, elle permet de rejoindre facilement les quartiers d'affaires et les sites culturels emblématiques de la ville tels que le Musée des Beaux-Arts, le Musée des Tissus et des Arts décoratifs ou encore le Musée Miniature. La résidence se trouve également à proximité de la gare Lyon Jean Macé et d'un arrêt de tramway, à moins de 2 km de la Part-Dieu et de la gare de Lyon Perrache, et à 10 km de l'aéroport de Lyon-Bron.
Parfaitement adaptée aux séjours professionnels comme aux déplacements prolongés, la résidence propose des appartements modernes et confortables, du studio pour 2 personnes au T2 pouvant accueillir jusqu'à 5 personnes. Tous disposent d'une cuisine équipée pour une autonomie totale. Les résidents bénéficient également d'un ensemble de services dédiés au confort et à la détente : petit-déjeuner sous forme de buffet, salle de sport et parking privé.
Ce bien en location sous bail commercial vous permet de bénéficier de nombreux avantages :
- Des loyers perçus, que votre bien soit occupé ou non.
- Des revenus locatifs soumis à la fiscalité avantageuse de la LMNP
- Des charges réduites
- Une durée de bail qui sécurise vos loyers dans la durée
Création Développement Patrimoine vous accompagne depuis plus de 20 ans pour vous aider à concrétiser vos projets d'investissement en immobilier géré sous bail commercial.
N'hésitez pas à nous contacter pour découvrir toutes nos opportunités en immobilier d'investissement : LMNP (Location Meublée Non Professionnelle) & LMP en résidences services (résidences étudiante, senior, affaires, tourisme, EHPAD ou médicalisée).
Consommation énergie primaire (KWh/m2/an) : 119
Consommation énergie finale : Non communiquée
22 m²
7 082 €
1
1
Sud
Contact Création et Développement de Patrimoine
Contacter gratuitement à l'aide du formulaire ci-dessous.