Aix-En-Provence - ?Idéalement situé pour les étudiants et les jeunes professionnels, découvrez ce studio entièrement équipé. Emplacement de choix à quelques minutes à pied des facultés et du centre-ville historique.
Au 1er étage d'une résidence récente - actuellement loué à une jeune étudiante sérieuse, les charges comprennent : eau, électricité et internet.
Parking facile, gratuit et sécurisé. Services complémentaires en option: laverie, restauration, snack bar, épicerie fine, surveillance dans les parties communes et extérieurs.
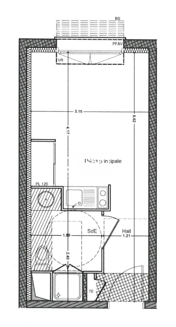
Studio entièrement équipé d'environ 19M2 desservie par un ascenseur, kitchenette, salle d'eau, canapé lit, télévision, balcon.
Idéal investisseur, il peut-être récupéré en fin de bail pour résidence principale
Bénéficiez immédiatement d'une bonne rentabilité.
Cette annonce référence 314922 vous est présentée par votre agent commercial BSK Immobilier ASCENSION BAUD (EI) immatriculé au RSAC de TOULON (83000) sous le numéro 92060819700017.
Prix du bien : 110 000,00 €
Les honoraires d'agence sont à la charge du vendeur.
A propos de la copropriété :
Pas de procédure en cours.
Nombre de lots : 1
Charges prévisionnelles annuelles : 1 560,00 €
Non soumis au DPE.
Les informations sur les risques auxquels ce bien est exposé sont disponibles sur le site Géorisques : www.georisques.gouv.fr
18 m²
6 111 €
1
1 sur 3
2009
Oui
Contact BAUD ASCENSION
Contacter gratuitement à l'aide du formulaire ci-dessous.