Super T3 82m2 mansardé à Fessenheim idéal investisseur ou 1er
Fessenheim 68740
0
Honoraires à la charge du vendeur.
Dans une petite copropriété de 10 lots dont 9 d'habitation, rue de la liberation, proche de tous commerces et de toutes les commodités, proche des écoles et collèges.
Cet appartement T3 de 82m² au sol se situe au deuxième étage sans ascenseur.
Il se compose d'une entrée, d'un séjour lumineux, d'une cuisine équipée, de 2 chambres, d'une salle de bains et de WC séparés.Appartement bien agencé, offrant de beaux volumes et une bonne luminosité.
Une cave et une place de stationnement complètent ce bien.
Rafraichissement à prévoir :
Électricité Sols et peinture Cuisine Salle de bain
Compteurs d'eau et d'électricité individuels.
Faibles charges de copropriété.
Nous contacter pour plus de renseignements ou pour programmer une visite.
DPE et GES : non applicable car système de chauffage à mettre en place.
Certaines photos présentées ont été retouchées à des fins de projection et de mise en valeur.
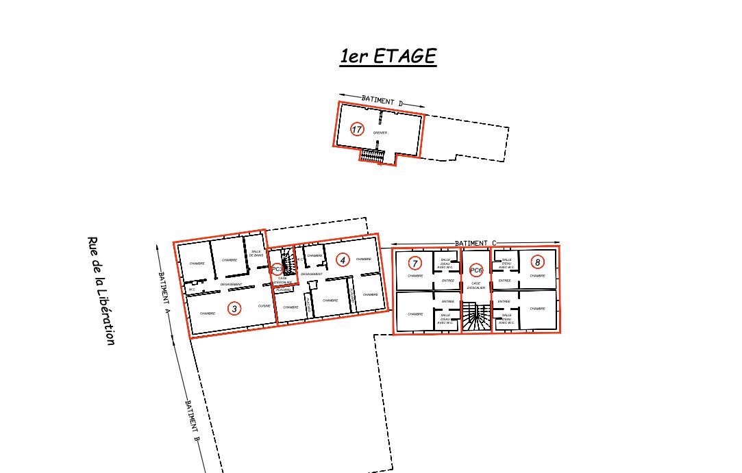
L'appartement présenté correspond au lot n°9, tel qu'indiqué sur les plans joints à l'annonce.
Les informations sur les risques auxquels ce bien est exposé sont disponibles sur le site Géorisques : www.georisques.gouv.fr
Pour plus d'informations, contactez-nous au 03.89.72.27.40 ou sur contact@immo-hardt.com
Honoraires à la charge du vendeur. Dans une copropriété de 10 lots. Aucune procédure n'est en cours. Non soumis au DPE. Les informations sur les risques auxquels ce bien est exposé sont disponibles sur le site Géorisques : georisques.gouv.fr.