T3 lumineux avec balcon et place de stationnement en sous-sol - FONTAINE-LES-DIJON
Au sein de la copropriété Les Essarteaux à Fontaine-les-Dijon, venez découvrir ce bel appartement T3 de 71 m² avec balcon, lumineux et parfaitement entretenu, situé au 3? étage avec ascenseur et place de stationnement en sous-sol, copropriété arborée et proche des commerces, bus et écoles.
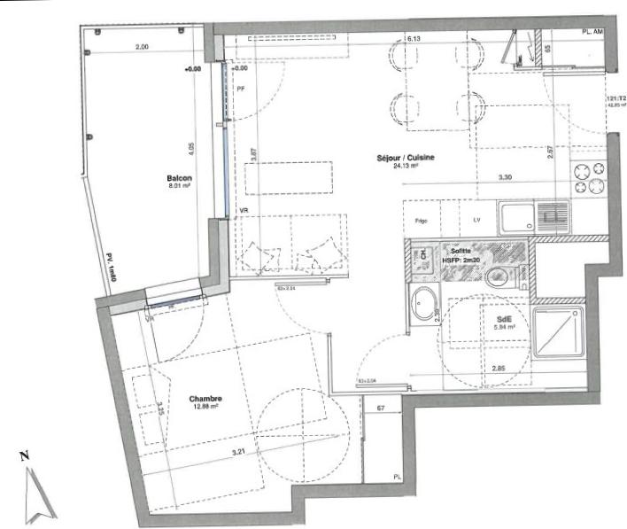
Description du bien: - Grande entrée - Cuisine indépendante, aménagée et équipée - Grand séjour lumineux ouvrant sur un balcon - 2 chambres avec placard intégré - Placard / dressing - Salle de douche avec coin buanderie - WC indépendant - Cave - Place de stationnement en sous-sol
Chauffage urbain et menuiserie PVC double vitrage.
A visiter sans tarder !
Bien soumis au statut de copropriété. Charges : 2675 / an soit 223 / mois (chauffage et eau chaude compris) Nombres de lots : 262 Nombres de lots d'habitation : 150 Pas de procédure en cours
Honoraires charge vendeurs Pietrapolis Immobilier Dijon- Edwige FAUGERAS Joignable par téléphone au O6 20 43 03 36 ou par mail à e.faugeras@pietrapolis.fr Agent commercial EI RSAC N° 494 478 167
Dans une copropriété de 262 lots. Quote-part moyenne du budget prévisionnel 2 675 /an. Aucune procédure n'est en cours. Classe énergie D, Classe climat C Montant estimé des dépenses annuelles d'énergie pour un usage standard : entre 1160.00 et 1620.00 sur les années 2021, 2022 et 2023 (abonnements compris). Les informations sur les risques auxquels ce bien est exposé sont disponibles sur le site Géorisques : georisques.gouv.fr.