En exclusivité, situé dans un cadre paisible et verdoyant, ce magnifique terrain de 712 m² est une occasion rare pour bâtir la maison de vos rêves. Offrant un potentiel exceptionnel, il promet un environnement serein tout en restant proche de la vie urbaine animée. Seulement à 8 mn de la gare de Montluel, de l'axe autoroutier A42, à 10 mn de la gare de St André de Corcy.
Avec une superbe superficie, ce terrain non mitoyen, parcelle pleine, hors lotissement, vous permet d'imaginer une habitation spacieuse selon vos envies, en parfaite harmonie avec la nature environnante. Profitez d'une vue dégagée pour un quotidien enchanteur.
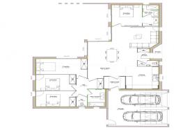
Parcelle non viabilisée, en bordure de la route du village, une maison de plain pied est préconisée. Projet et devis réalisé par un constructeur, entre 90 et 130 m2, vous permettra une excellente projection et visualisation de la maison de vos souhaits.
A saisir rapidement!
Contactez Audrey THUILIERE pour plus d'informations sur ce joyau rare ! Profitez de cette opportunité unique et concrétisez votre projet immobilier dans un cadre enchanteur !
Cette annonce référence 309874 vous est présentée par votre agent commercial BSK Immobilier AUDREY THUILIERE (EI) immatriculé au RSAC de BOURG-EN-BRESSE (01000) sous le numéro 82384486500043.
Prix du bien : 169 000,00 €
Les honoraires d'agence sont à la charge du vendeur.
Les informations sur les risques auxquels ce bien est exposé sont disponibles sur le site Géorisques : www.georisques.gouv.fr
712 m²
237 €
712 m²
Contact Iad France - Audrey THUILIERE
Contacter gratuitement à l'aide du formulaire ci-dessous.