Votre agent au Noeud Pap' vous propose ce T2 entièrement rénové qui vous offre tout le confort dont vous avez besoins avec son box, sa terasse de 31m² et sa cuisine aménagée et équipé. Découvrez en exclusivité le bien sous toutes ses facettes grâce aux photos 4K et la visite virtuelle.
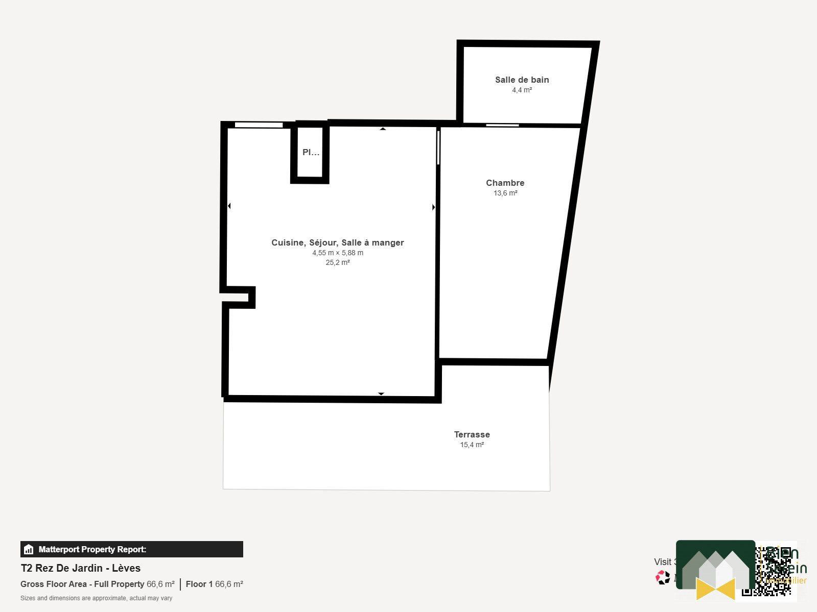
Découvrez un appartement composé comme suit : - Entrée avec placard - Séjour lumineux - Cuisine aménagée et équipée - Chambre une dressing - Salle d'eau - WC indépendant,
Côté confort : - Terrasse de 31m² privative - Bbox de stationnement fermé privatif - Double vitrage et volets roulants - RDC surélevé avec ascenseur
L'emplacement : Profitez d'un emplacement privilégié avec toutes les commodités accessibles à pied ou en transports en communs pour pfoités de la gare, des commerces, des écoles...
À propos de la copropriété : Résidence bien tenue, avec parties communes en bon état et aucun travaux votés. Les charges mensuelles s'élèvent à 101/mois l'entretien de l'ascensseur et des parties communes. Toutes les charges personnelles sont individuelles.
N'hésitez pas à contacter votre agent au Noeud Pap' pour obtenir plus d'informations et visiter cet appartement ! ??
Honoraires à la charge du vendeur. Dans une copropriété de 98 lots. Quote-part moyenne du budget prévisionnel 1 212 /an. Aucune procédure n'est en cours. Classe énergie D, Classe climat B Montant moyen estimé des dépenses annuelles d'énergie pour un usage standard, établi à partir des prix de l'énergie de l'année 2023 : entre 700.00 et 1000.00 . Les informations sur les risques auxquels ce bien est exposé sont disponibles sur le site Géorisques : georisques.gouv.fr.
47.09 m²
2 756 €
2
1
1
1 (séparé)
1 sur 3
1998
Est
Nord
Oui
1
Oui
1
Oui (98 lots)
Consommations énergétiques
Logement économe
232
Logement énergivore (kWhEP/m2/an)
Émissions de gaz à effet de serre
Faible émission de GES
7
Forte émission de GES(kgeqCO2/m2/an)
Contact Damien GHERBEZZA
Contacter gratuitement à l'aide du formulaire ci-dessous.