T2 DERNIER ETAGE AVEC TERRASSE - RESIDENCE AVEC PISCINE
Sérézin-du-Rhône 69360
0
Exclusivité rare à la vente dans le centre de Sérézin, Allée des Charmilles, à seulement 800m de la Gare : T2 de 48m2 au 2ème étage avec terrasse de 13m2, parking collectif et cave.
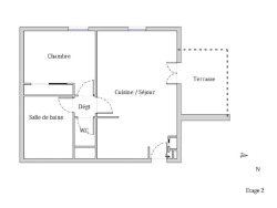
Situé au calme absolu, dans une résidence sécurisée de 2007, cet appartement T2 de 48m2 au 2ème et dernier étage est composé d'une entrée avec placard, d'une pièce de vie de 28m2 avec cuisine ouverte donnant sur la terrasse plein ciel orientée ouest, d'une chambre de 11m2 avec placards, d'une salle de bains avec baignoire et meuble vasque et de WC séparés.
Ce bien est vendu avec une cave privative, et la résidence dispose d'un parking collectif fermé, ainsi que de beaux espaces vert et d'une piscine sécurisée.
Idéal pour un premier achat ou un investissement locatif en toute sérénité - Double vitrage et chauffage individuel électrique - Emplacement centrale à proximité immédiate des commerces - Gare SNCF à 800m (Jean Macé accessible en 13min).
Bien soumis au régime de la copropriété (53 lots principaux) - Aucune Procédure en cours - Charges mensuelles : 114,31 EUR incluant les charges de copropriété, de bâtiment et d'eau froide (soit 1 371,70 EUR / an).
Montant estimé des dépenses annuelles d'énergie pour un usage standard : entre 850EUR et 1190EUR par an. Prix moyens des énergies indexés sur l'année 2021 (abonnements compris).
Honoraires d'agence à la charge du vendeur.
Contactez-nous dès maintenant pour une visite au 07.44.92.14.61!
« Les informations sur les risques auxquels ce bien est exposé sont disponibles sur le site Géorisques: www.georisques.gouv.fr » (C. envir., art. R. 125-25, I).
47 m²
3 723 €
28 m²
2
1
1
1
2 sur 2
2008
Oui
Oui
Consommations énergétiques
Logement économe
272
Logement énergivore (kWhEP/m2/an)
Émissions de gaz à effet de serre
Faible émission de GES
8
Forte émission de GES(kgeqCO2/m2/an)
Contact Régie François Goffin
Contacter gratuitement à l'aide du formulaire ci-dessous.