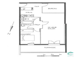
Situé dans un quartier calme et recherché, cet appartement lumineux de 60m² offre un agencement fonctionnel et de beaux espaces. Caractéristiques du bien : Superficie : 60m² Séjour spacieux donnant sur une terrasse agréable Cuisine équipée, séparée du séjour 1 chambre avec placard et accès direct à la terrasse Bureau pouvant servir de petite chambre ou d'espace de travail Salle de bain Toilettes séparés Informations financières :Charges de copropriété : 1 060/an Taxe foncière : 1 230/an Idéalement situé à proximité des commodités, transports et commerces. À visiter sans tarder !
Intéressé ? Contactez nous.
Honoraires à la charge du vendeur. Dans une copropriété de 203 lots. Aucune procédure n'est en cours. Classe énergie C, Classe climat A Montant moyen estimé des dépenses annuelles d'énergie pour un usage standard, établi à partir des prix de l'énergie de l'année 2021 : entre 500.00 et 700.00 . Les informations sur les risques auxquels ce bien est exposé sont disponibles sur le site Géorisques : georisques.gouv.fr.
60 m²
1 998 €
11 m²
3
2
1
1 (séparé)
4 sur 4
2004
1 (11 m²)
1
Oui (203 lots)
Consommations énergétiques
Logement économe
146
Logement énergivore (kWhEP/m2/an)
Émissions de gaz à effet de serre
Faible émission de GES
5
Forte émission de GES(kgeqCO2/m2/an)
Contact C2i SUD OUEST
Contacter gratuitement à l'aide du formulaire ci-dessous.