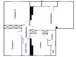
Votre agence GINET Immobilier a le plaisir de vous présenter cet appartement T3, idéalement situé au 3ème et dernier étage d'une résidence calme, en retrait de la rue. Nichée dans le secteur de Santy La Plaine, à deux pas de la place Général André et de toutes ses commodités (transports, commerces, écoles), cette adresse offre un cadre de vie agréable et pratique au quotidien. L'appartement, traversant et baigné de lumière, se compose d'un séjour ouvrant sur un balcon, d'une cuisine indépendante, de deux chambres, d'une salle d'eau et de toilettes séparées. Une cave vient compléter ce bien. La copropriété dispose également d'un stationnement collectif pour plus de confort. Pour organiser une visite, contactez Antoine Madelrieux O698301684 Copropriété de 264 lots - dont 88 lots habitation. (Pas de procédure en cours). Charges annuelles : 897 euros.