Très rare : Nouvelle réalisation en plein centre de LANNION : à pied de tous commerces, 7 min à pied de la Gare. Nouveau : Résidence de standing en construction pour fin 2027, normes RE2020, Ascenseur, Frais de notaire réduits.
Au pied de la résidence : jardin collectif pour les résidents clos de mur 1000m2. Un havre de paix en plein centre ville! A 10 min en voiture des merveilleuses plages de la côte de Granit Rose. En lot arrière, au calme.
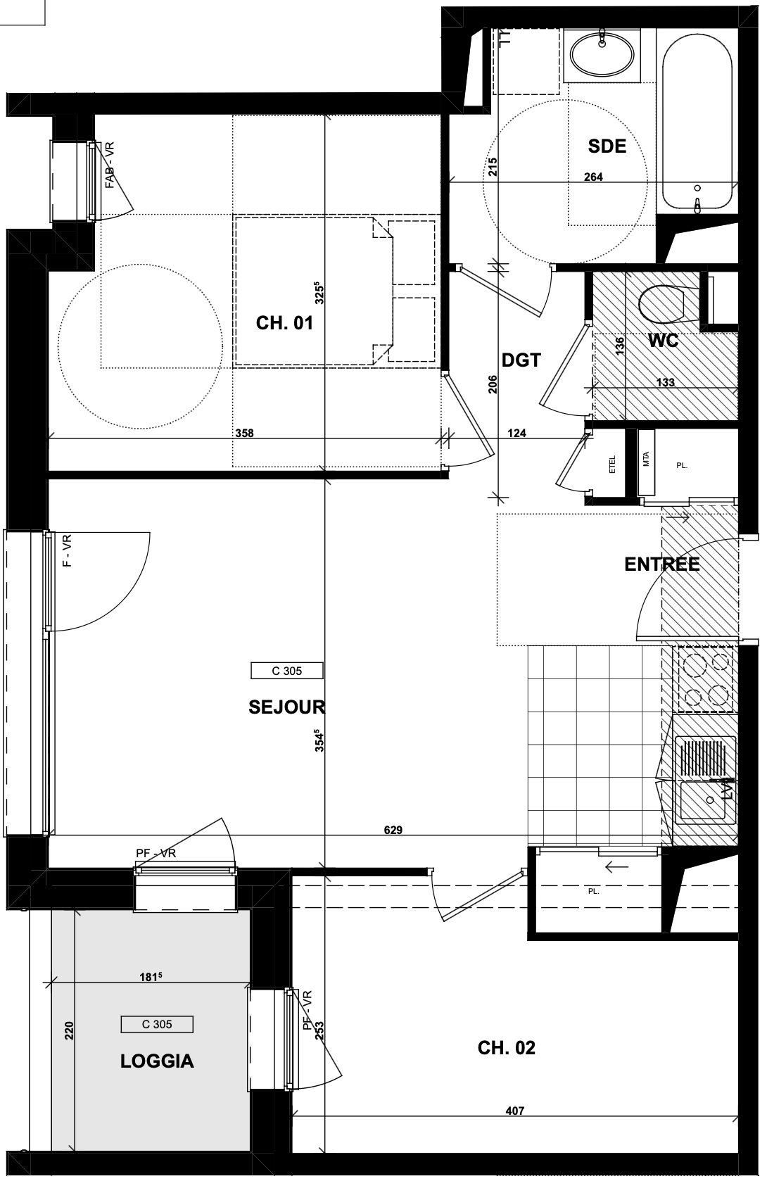
Ce T3 est situé au rez de chaussée et donne sur un jardin de 39,7m2 clos de murs. Séjour 24,7m2, deux chambres 11-10,2m2, salle de bains, wc séparés, entrée/placard. Parking et cave. Possibilité modification de plans intérieurs.
Nous consulter.
Honoraires à la charge du vendeur. Non soumis au DPE. Les informations sur les risques auxquels ce bien est exposé sont disponibles sur le site Géorisques : georisques.gouv.fr.
Votre conseiller MON BIEN A LA MER : Gérant - .fr MON BIEN A LA MER Carte T CPI 2201 2018 000 025 040 RCP ACM IARD B1 7025278
57.7 m²
3 917 €
25 m²
3
2
1
1 (séparé)
Oui
Oui
1
Contact mon bien à la mer
Contacter gratuitement à l'aide du formulaire ci-dessous.