T3 Duplex de 88m² à rénover entierement au 4ème et dernier ?
Lyon 69006
0
Honoraires à la charge du vendeur.
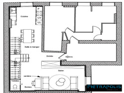
Duplex Charmant à Rénover au Coeur de Lyon 69006 Imaginez vivre dans un duplex unique, au coeur de Lyon, dans le prestigieux 6e arrondissement. Cet appartement de 88 m², niché au 4ème étage d'un immeuble ancien, offre une opportunité rare de créer un véritable havre de paix personnalisé. Cet espace généreux se compose de trois pièces principales, dont deux chambres et deux salles d'eau, ainsi qu'un WC indépendant.
L'état général du bien est ancien, ce qui signifie que vous aurez la liberté de le rénover selon vos goûts et vos envies.
Les combles offrent un potentiel supplémentaire pour agrandir encore plus votre espace de vie.
La cuisine, nue, est un véritable terrain de jeu pour les amateurs de décoration intérieure. Imaginez-la équipée de meubles sur mesure et d'appareils électroménagers modernes, créant un espace convivial et fonctionnel.
Situé à proximité de nombreuses commodités, ce duplex est idéal pour une vie urbaine épanouissante. À seulement 5 minutes à pied, vous trouverez des arrêts de bus, des stations de métro et de tramway, ainsi que des écoles allant de la crèche au collège. Les amateurs de gastronomie seront ravis de découvrir les nombreux restaurants à proximité, tandis que les amoureux de la nature pourront se détendre dans les parcs et jardins voisins.
Ne manquez pas l'opportunité de transformer ce duplex en un lieu de vie exceptionnel. Contactez-nous dès aujourd'hui pour organiser une visite et découvrir tout le potentiel de cet appartement unique. N'hésitez plus pour visiter ou faire estimer votre bien, prenez rendez-vous: https://calendly.com/s-riondet/30min?month=2024-03 Contactez Sébastien Riondet au 0647332216 ou s.riondet@pietrapolis.fr
Honoraires à la charge du vendeur. Dans une copropriété de 10 lots. Aucune procédure n'est en cours. Classe énergie G, Classe climat C Logement à consommation énergétique excessive. Montant moyen estimé des dépenses annuelles d'énergie pour un usage standard, établi à partir des prix de l'énergie de l'année 2021 : entre 1450.00 et 1990.00 . Les informations sur les risques auxquels ce bien est exposé sont disponibles sur le site Géorisques : georisques.gouv.fr.