T3 LUMINEUX DE 76m² - BALCON - CAVE ET PARKING - LUCE
Lucé 28110
0
Honoraires à la charge du vendeur.
T3 LUMINEUX DE 76m² - BALCON - CAVE et PARKING - LUCE
Bienvenue dans votre futur chez vous ! À 2km de la place des épars, nous avons le plaisir de vous présenter un appartement avec un blacon , cave et stationnement privatif.
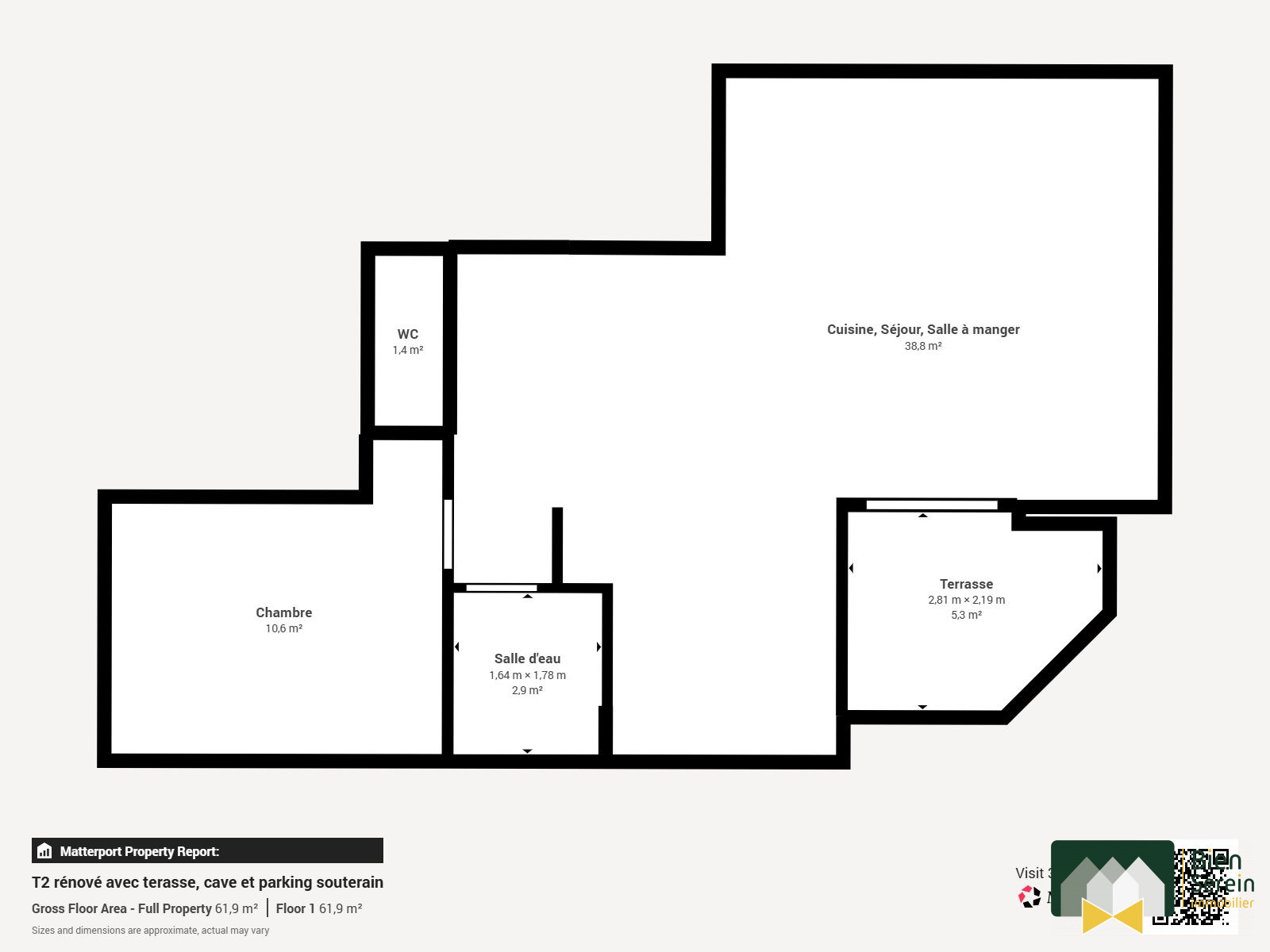
Situé au 4ème et dernier étage, cet appartement est disposé comme suit : - Entrée - Séjour/Salle à manger - Cuisine - 2 Chambres - Salle de bain - WC indépendant
Côté confort - Séjour spacieux de 30m² - Exposition Est-Ouest - Box fermé de 12,5m² - Une cave de 6m²
À propos de la copropriété (54 lots d'habitation) Les charges mensuelles de 85 intègrent l'entretien des communs et à l'avantage d'avoir toutes les consommations en privées.
L'emplacement : Vous pourrez bénéficier de tout les commerces et loisirs de la ville ainsi que le réseau filibus au pied de l'appartement. La place des épars sera à 2km (5 minutes en voiture ou à velo).
N'hésitez pas à contacter votre agent au Noeud Pap' pour obtenir plus d'informations et visiter cet appartement !
Honoraires à la charge du vendeur. Dans une copropriété de 136 lots. Quote-part moyenne du budget prévisionnel 1 017 /an. Aucune procédure n'est en cours. Classe énergie E, Classe climat E Montant moyen estimé des dépenses annuelles d'énergie pour un usage standard, établi à partir des prix de l'énergie de l'année 2021 : entre 1598.00 et 2164.00 . Les informations sur les risques auxquels ce bien est exposé sont disponibles sur le site Géorisques : georisques.gouv.fr.
76 m²
1 645 €
29 m²
3
2
1
1 (séparé)
4 sur 4
85.00 € / mois
1966
Est
Ouest
1
Oui
1
Oui
Oui (136 lots)
Consommations énergétiques
Logement économe
319
Logement énergivore (kWhEP/m2/an)
Émissions de gaz à effet de serre
Faible émission de GES
69
Forte émission de GES(kgeqCO2/m2/an)
Contact Charly CHESNEAU
Contacter gratuitement à l'aide du formulaire ci-dessous.