T3 lumineux en front de mer Plage de l'Argentière (La Lond
La Londe-les-Maures 83250
0
Honoraires à la charge de l'acquéreur (Prix hors honoraires : 430000 euros).
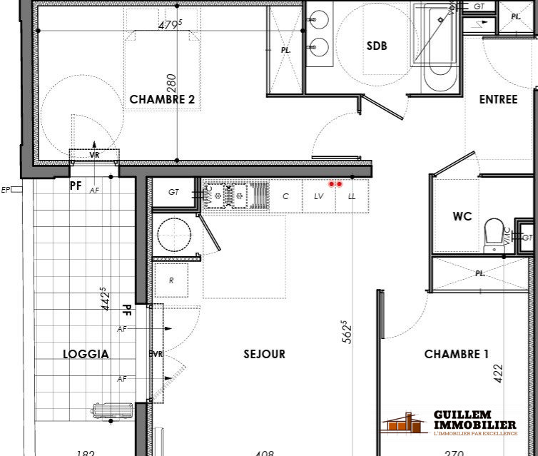
Emplacement exceptionnel en front de mer à LA LONDE ! Situé en premier et dernier étage d'une petite résidence fermée en front de mer, ce bel appartement T3 de 50 m2 offre un cadre de vie rare, à quelques pas seulement de la plage de l'Argentière, accessible directement par un chemin privé. Descriptif du bien : Surface habitable : 50 m2 Séjour lumineux ouvrant sur la terrasse Cuisine aménagée Deux chambres Salle d'eau et WC séparés Atouts extérieurs : Grande terrasse de 47 m2, triple exposition Est / Sud / Ouest Espace couvert pour profiter de l'extérieur toute l'année Vue dégagée et belle luminosité Place de parking numérotée possibilité de double Garage en sus au prix de 38000EUR Informations complémentaires : Copropriété bien entretenue Charges mensuelles : 93 EUR Taxe foncière : 1396EUR DPE : E / GES : B Accès direct à la plage par un chemin privé Ce bien rare allie emplacement privilégié, calme, et vue imprenable sur la mer -- idéal pour une résidence secondaire ou un pied-à-terre en bord de mer. Conformément aux nouvelles réglementations, « les informations sur les risques auxquels ce bien est exposé sont disponibles sur le site Géorisques : www.georisques.gouv.fr ». Le bien se trouve dans la commune de La Londe-les-Maures, sur la Côte d'Azur varoise, entre Hyères et Le Lavandou. Entre collines, vignobles et plages, face aux îles d'Or (Port-Cros et Porquerolles), La Londe-les-Maures s'étend entre terre et mer. Son coeur de village, actif toute l'année, est relié par la voie verte des Annamites aux plages de la Baie des Isles, de l'Argentière et au port de plaisance Miramar. Ses paysages méditerranéens variés, ses espaces protégés et son climat d'une douceur exceptionnelle font de La Londe une destination privilégiée pour les vacances et pour la vie à l'année. Idéalement desservie, la commune est à proximité de tous les transports. Elle est proche d'un accès à l'autoroute A57 (reliant Toulon, Marseille, Aix et Nice), à quelques minutes de l'aéroport de Toulon-Hyères, et des gares TGV de Hyères et de Toulon. Pour les informations et les visites, contactez Agnès Rousseau au 06 18 00 17 83 ou par e-mail à contact@leslondaises.com. Consultez toutes nos offres sur le site www.agenceleslondaises.com. L'Agence Les Londaises à La Londe-les-Maures vous accueille dans son agence-boutique en centre-ville, au 4 rue Maréchal Foch. Spécialistes du secteur londais depuis plus de 10 ans, nous vous accompagnons efficacement dans tous vos projets d'achat ou de vente. Nous vous proposons une sélection d'appartements, de maisons et de garages à vendre, et nous vous aidons également pour la location saisonnière dans la région et ses environs.
50 m²
9 000 €
19 m²
3
2
1
1
4.65 %
93 € / mois
1974
Sud
1
1
Oui
Consommations énergétiques
Logement économe
315
Logement énergivore (kWhEP/m2/an)
Émissions de gaz à effet de serre
Faible émission de GES
10
Forte émission de GES(kgeqCO2/m2/an)
Contact ROUSSEAU
Contacter gratuitement à l'aide du formulaire ci-dessous.