CROZON plein centre, toutes commodités à pied : Petite résidence neuve de 8 lots seulement - travaux en cours - Visitable - livraison 2è trimestre 2025. Local vélo. Faibles charges, lot arrière, très calme.
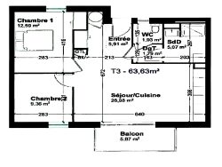
Spacieux T3 dernier étage, expo sud, double parking et balcon. Frais de notaire réduits.
Nous Consulter
Honoraires à la charge du vendeur. Non soumis au DPE. Les informations sur les risques auxquels ce bien est exposé sont disponibles sur le site Géorisques : georisques.gouv.fr.
Votre conseiller MON BIEN A LA MER : Gérant - .fr MON BIEN A LA MER Carte T CPI 2201 2018 000 025 040 RCP ACM IARD B1 7025278
63.63 m²
3 850 €
3
2
1
1 (séparé)
1 sur 1
2
1
Contact mon bien à la mer
Contacter gratuitement à l'aide du formulaire ci-dessous.