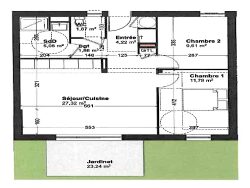
CROZON plein centre, toutes commodités à pied : Petite résidence neuve de 8 lots seulement - travaux en cours - Visitable - livraison 2è trimestre 2025. Local vélo. Faibles charges, lot arrière, très calme.
Beau T3 au rez de chaussée avec jardinet et deux places de parking. Frais de notaire réduits.
Nous Consulter
Honoraires à la charge du vendeur. Non soumis au DPE. Les informations sur les risques auxquels ce bien est exposé sont disponibles sur le site Géorisques : georisques.gouv.fr.
Votre conseiller MON BIEN A LA MER : Gérant - .fr MON BIEN A LA MER Carte T CPI 2201 2018 000 025 040 RCP ACM IARD B1 7025278
61.75 m²
4 049 €
3
2
1
1 (séparé)
2
Contact mon bien à la mer
Contacter gratuitement à l'aide du formulaire ci-dessous.