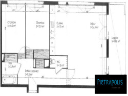
Sur le plateau de la Duchère, rue Arthur Rimbaud, venez visiter ce bel appartement en excellent état au 3ème étage avec Loggia dans une résidence récente de 2008.
Une grande entrée avec placard vous accueille et donne accès directement au salon-séjour ainsi que la cuisine ouverte pour un espace de près de 35 m², complété par une loggia de plus de 10 m² pour profiter des beaux jours.
Côté nuit, vous disposerez de deux belles chambres en parquet dont l'une avec placard, une salle de bains et un sanitaire séparé.
Pour plus de confort de déplacement au quotidien pourrez acquérir un garage en sous-sol en supplément pour 15 000.
Pour visiter ce bien, contactez Mikaël Fernandes au 06 89 23 19 67 ou via m.fernandes@pietrapolis.fr
DPE : C : 155 kWhEP/m².an GES : C : 13 kg CO²/m.an Charges de copropriété : 252 / Mois incluant le chauffage ainsi que l'eau chaude et froide Taxe Foncière : 1 045 / an
Honoraires à la charge du vendeur. Dans une copropriété de 78 lots. Quote-part moyenne du budget prévisionnel 3 024 /an. Aucune procédure n'est en cours. Classe énergie C, Classe climat C Montant estimé des dépenses annuelles d'énergie pour un usage standard : entre 870.00 et 1240.00 sur les années 2021, 2022 et 2023 (abonnements compris). Les informations sur les risques auxquels ce bien est exposé sont disponibles sur le site Géorisques : georisques.gouv.fr.