DEUX TERRASSES - EXPOSITION SUD - PARKING - DISPONIBLE
Dans une résidence intimiste de seulement 21 lots situé aux portes du centre ville de Bordeaux. La résidence aux lignes à la fois sophistiquées et minimalistes est édifiée avec des parkings et/ou box en sous-sol en supplément. Au coeur de la résidence vous trouverez un espace vert.
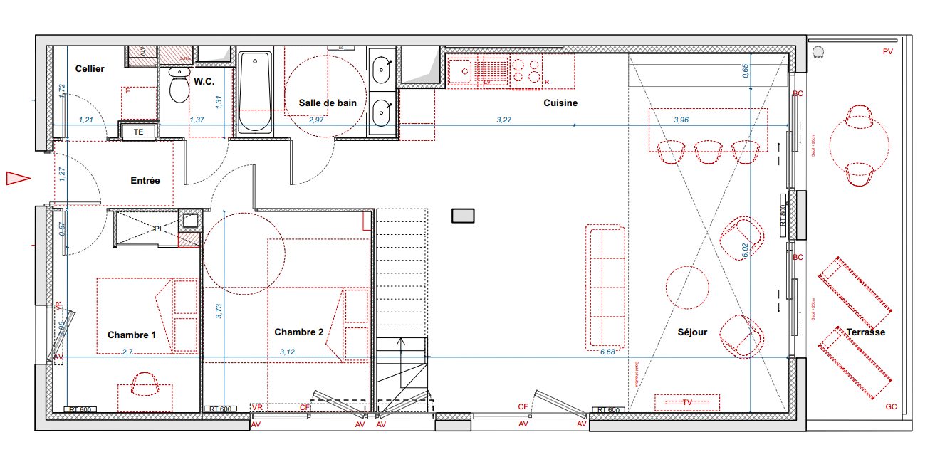
L'appartement a été étudié avec soin pour laisser rentrer la lumière. Il se situe au deuxième et dernier étage de la résidence, totalement au calme.
D'une superficie de 104m2, il se compose d'une entrée donnant accès à une magnifique pièce de vie de 45m2 très lumineuse grâce à ses multiples ouvertures ainsi que son séjour cathédrale. Cette pièce se prolonge sur une belle terrasse de 9m2 totalement au calme exposée Sud. Sur ce même niveau de plain-pied, vous disposerez d'une suite parentale de 15m2 avec placard, salle d'eau privative ainsi qu'une seconde terrasse de plus de 5m2. En complément, un cellier et un WC indépendant.
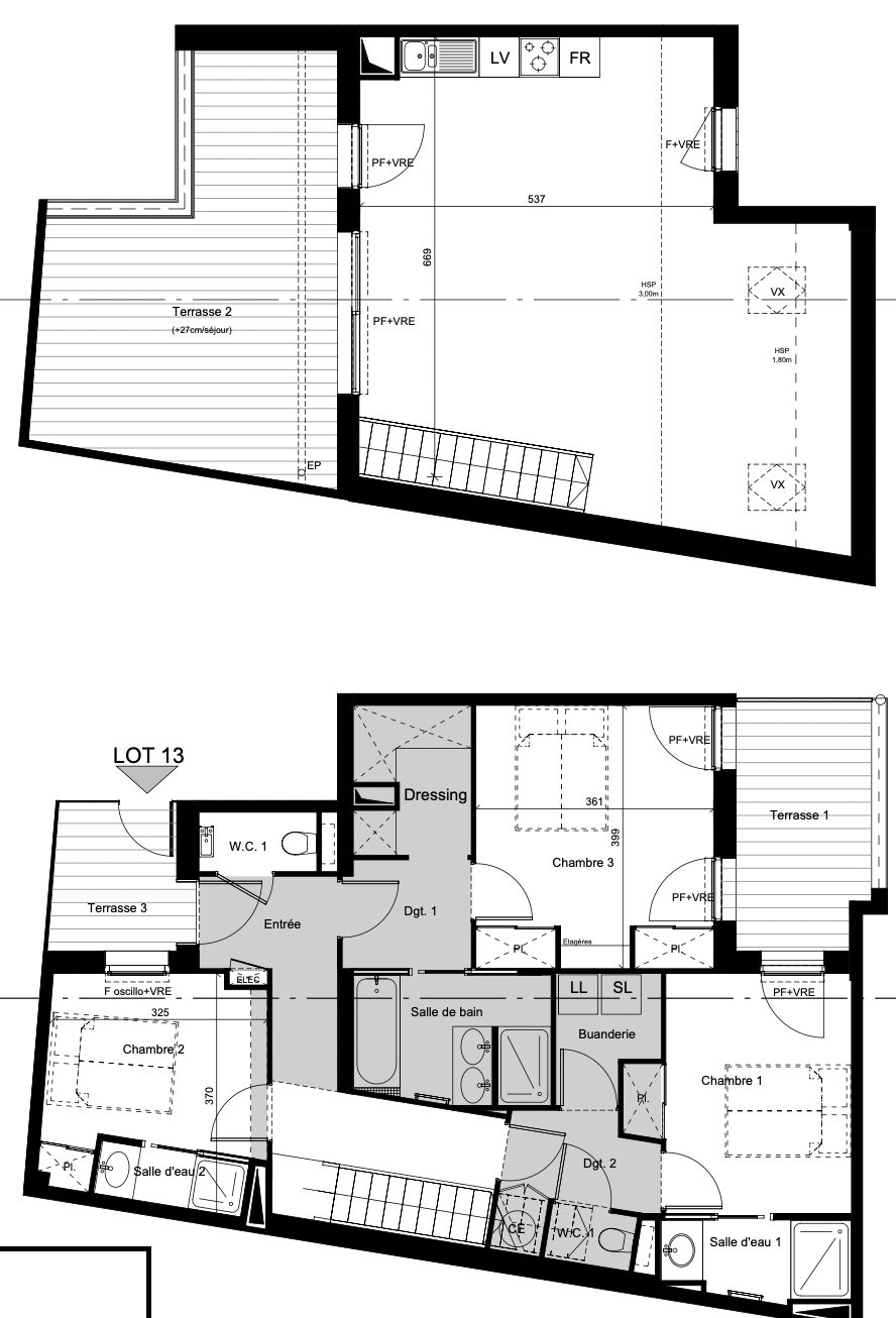
À l'étage, vous trouverez deux chambres avec placard, une salle de bains ainsi qu'un second WC indépendant.
Un parking sécurisé complète le bien.
- Frais de Notaire réduits - Garanties - RT 2012 - Exonération de taxe Foncière - Disponible - ...
DEUX TERRASSES - EXPOSITION SUD - PARKING - DISPONIBLE
Honoraires à la charge du vendeur. Dans une copropriété de 21 lots. Aucune procédure n'est en cours. DPE en cours. Les informations sur les risques auxquels ce bien est exposé sont disponibles sur le site Géorisques : georisques.gouv.fr. Ce bien vous est proposé par un agent commercial (Entreprise individuelle).