T4 de 81 m2 - 3e étage - À rafraîchir/rénover - Doulon-Botti
Nantes 44300
Doulon-Bottière
Honoraires à la charge de l'acquéreur (Prix hors honoraires : 142150 euros).
Mobilim, l'avance immobilière, vous propose cet appartement T4 de 80,90 m2 loi Carrez.
Bien sous option Fastim pour une vente accélérée d'1 mois.
Idéal investisseur ou famille avec 1 ou 2 enfant(s).
Caractéristiques :
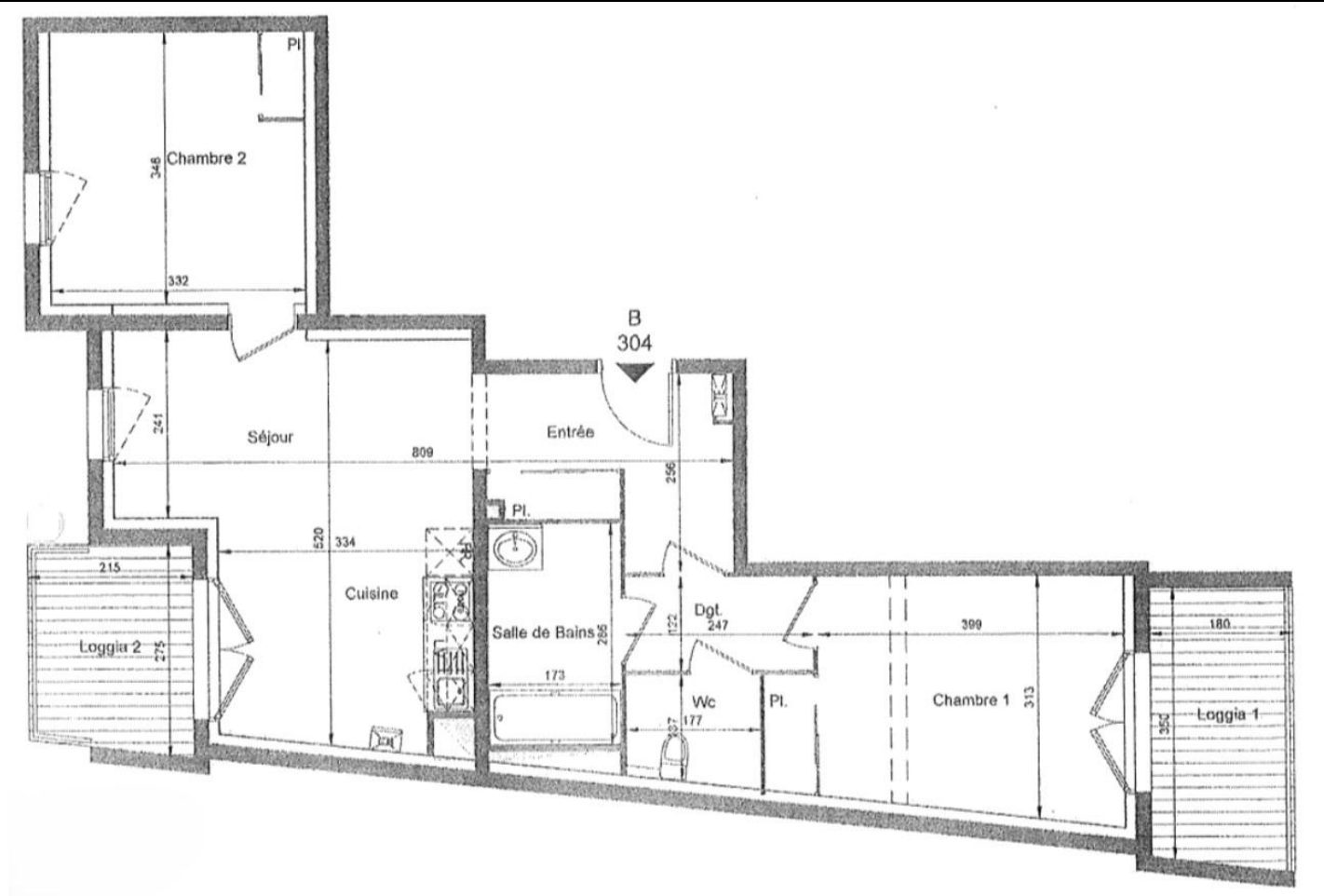
Au 3e étage sur 4 d'une résidence sécurisée, calme et proche de toutes les commodités. Nombre de lots : 24. Interphone et système Vigik. Gardien partagé avec une seconde copropriété. Entrée : 3,1 m2. Dégagement : 9 m2.3 chambres de 9,5 m2 (x 2) et 11,8 m2. Cuisine semi-ouverte de 9,6 m2 avec coin repas donnant sur un séjour de 18,5 m2. 2 Placards/dressings de 2,7 m2 chacun. Salle de bain : 4,2 m2. Toilettes séparées : 1,5 m2. Fenêtres double vitrage PVC. Chauffage : collectif au gaz de ville. Nouveau DPE en cours. Actuel : classe énergie B, classe climat C. Date de réalisation : 25/06/2019. Parc clos, notamment équipé de jeux pour enfants. Grand local à vélos sécurisé. Nombreuses places de parking collectives gratuites. Quartier en cours de réhabilitation, pour une qualité de vie améliorée. Charges de copropriété : environ 390 /trimestre. Montant estimé des dépenses d'énergie : entre 700 et 900 /an. Prix moyens indexés au 1er janvier 2025 (abonnement compris).
Travaux à prévoir :
Cuisine. Remplacement du mécanisme des volets roulants manuels. Remplacement chaudière conseillé (en panne). Rafraîchissement salle de bain, sols, peintures et portes bienvenu.
Les photos de l'intérieur sont retouchées. Elles présentent le bien tel qu'il pourrait être optimisé. Les visites seront groupées et organisées les lundis, jeudis et/ou samedis selon les créneaux disponibles.
Prix de vente : 149 640 , dont honoraires forfaitaires de 7 490 TTC (5,27 % TTC) à la charge de l'acquéreur, calculés indépendamment du prix net vendeur. Prix hors honoraires : 142 150 . Prix au m2 : 1 849,69 . Option Fastim (génération du compromis de vente en 72 heures) : offerte (au lieu de 690 TTC).
Les informations sur les risques auxquels ce bien est exposé sont disponibles sur le site Géorisques : http://www.georisques.gouv.fr/
Avec Mobilim, l'avance immobilière, découvrez l'immobilier que vous méritez : zéro démarchage intrusif ; honoraires parmi les plus bas de France ; services innovants ; aides à l'acquisition inédites ; équipe salariée en CDI ; accompagnement complet ; respect des gens, des ressources et de l'environnement... Notre priorité : l'éthique. Sans compromis. Ensemble, bougeons l'immobilier dans le bon sens !
Mobilim, SAS de l'Économie Sociale et Solidaire à capital variable (plancher : 21 000 ). Siège social : 2 place Jean V, Bureau 3, 44000 Nantes. Carte professionnelle n° CPI 4401 2024 000 000 040 délivrée par la CCI de Nantes-Saint Nazaire. Garantie financière avec maniement de fonds : 120 000 . Organisme garant et assurance RCP : GALIAN-SMABTP Assurances. Siège social : 89 rue La Boétie, 75008 Paris.
Honoraires inclus de 5.27% TTC à la charge de l'acquéreur. Prix hors honoraires 142 150 . Dans une copropriété de 24 lots. Aucune procédure n'est en cours. DPE en cours. Les informations sur les risques auxquels ce bien est exposé sont disponibles sur le site Géorisques : georisques.gouv.fr.
Carte pro. CPI 4401 2024 000 000 040 AC ADC 4401 2025 000 002 489. Ensemble, bougeons l'immobilier dans le bon sens.
80.9 m²
1 850 €
19 m²
4
3
1
1 (séparé)
3 sur 4
5.27 %
15/07/2026
130.00 € / mois
1972
Ouest
Oui
Oui
Oui
Oui (24 lots)
Consommations énergétiques
Logement économe
87
Logement énergivore (kWhEP/m2/an)
Émissions de gaz à effet de serre
Faible émission de GES
14
Forte émission de GES(kgeqCO2/m2/an)
Contact Enzo MOIO
Contacter gratuitement à l'aide du formulaire ci-dessous.