Située dans un environnement résidentiel calme et très recherché, cette résidence offre un cadre de vie privilégié, à la croisée entre tranquillité et accès direct aux commodités urbaines. Implantée à Mérignac, dans le quartier prisé d'Arlac, elle bénéficie d'une localisation stratégique. À moins de 5 minutes à pied, la ligne A du tramway permet de rejoindre le centre-ville de Bordeaux en seulement 15 minutes, ainsi que les quartiers dynamiques de Mérignac et Saint-Augustin.
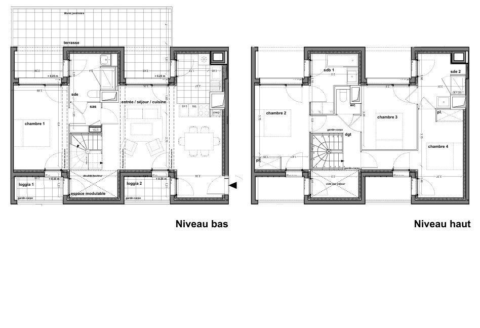
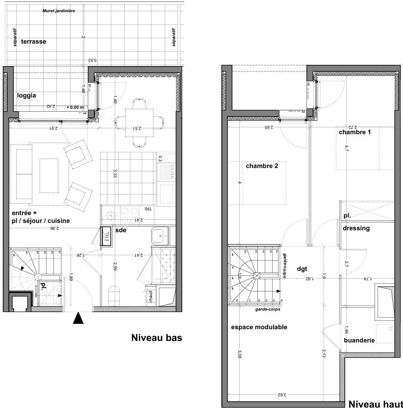
Le quartier séduit par sa douceur de vivre et sa praticité :écoles, crèches, commerces de proximité, centre commercial, espaces verts et pistes cyclables se trouvent à quelques pas, facilitant le quotidien des familles comme des actifs. Ce T4 traversant de 81 m² séduit par son agencement intelligent et ses généreux volumes. La pièce de vie de 30 m², lumineuse et conviviale, s'ouvre sur un bel extérieur de plus de 90 m²,comprenant une terrasse et un jardin privatif, idéal pour recevoir ou profiter de moments de détente.
L'appartement est organisé en deux espaces nuits pour plus d'intimité et de confort. D'un côté, une première chambre avec placard, une salle d'eau moderne et un WC indépendant. De l'autre, deux autres chambres avec rangements, une salle de bain avec WC, ainsi qu'une buanderie fonctionnelle.
Un cellier privatif sur le palier offre un espace de rangement supplémentaire. Enfin, une place de parking (en sus 20 000?) vient compléter ce bien aux prestations équilibrées, idéal pour une vie de quartier agréable tout en restant connecté au centre de Bordeaux.
- Aucun travaux à prévoir - Frais de Notaires Réduits - Garanties - RT 2012 - ...
MAGNIFIQUE T4 AVEC JARDIN ET PARKING A ARLAC
Honoraires à la charge du vendeur. Dans une copropriété de 31 lots. Aucune procédure n'est en cours. DPE en cours. Les informations sur les risques auxquels ce bien est exposé sont disponibles sur le site Géorisques : georisques.gouv.fr.