PIED DE TRAM - TERRASSES - TRAVERSANT - DERNIER ETAGE - PARKINGS
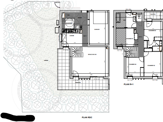
Situé à Mérignac, au coeur d'un quartier résidentiel prisé alliant calme et dynamisme, ce spacieux duplex de plus de 111 m² habitables s'inscrit dans une nouvelle résidence contemporaine à l'architecture élégante, pensé pour offrir un cadre de vie aussi pratique qu'agréable. Nichée dans un écrin de verdure, la résidence bénéficie d'un environnement paysager soigné et d'aménagements de qualité, à quelques pas seulement des commerces de proximité, des établissements scolaires et des transports en commun (tram A et lignes de bus), facilitant les déplacements au quotidien. Situé en dernier étage, ce duplex 5 pièces séduit par ses volumes généreux, sa luminosité naturelle, et ses espaces extérieurs conçus pour prolonger le confort intérieur. L'agencement optimisé permet de concilier vie de famille, télétravail et moments de détente, dans un esprit résolument moderne.
Le niveau principal accueille une vaste pièce à vivre baignée de lumière avec cuisine ouverte, prolongée par une belle terrasse de près de 25 m² exposée plein sud, idéale pour profiter du soleil en toute saison. Une première chambre ainsi qu'une salle d'eau avec WC complètent ce niveau. Deux loggias supplémentaires offrent des espaces extérieurs intimistes, parfaits pour un coin lecture ou une pause café. À l'étage, l'espace nuit se compose de deux chambres supplémentaires avec salle d'eau, ainsi que d'une suite parentale disposant de sa propre salle de bain avec WC. Une belle opportunité pour les familles en quête d'espace et de confort dans un environnement serein et moderne.
Deux places de parking sécurisées complètent ce bien en sus obligatoire (15 000).
- Aucun travaux à prévoir - Ascenseur - Frais de Notaires Réduits - Garanties - RT 2012 - Disponible - ...
PIED DE TRAM - TERRASSES - TRAVERSANT - DERNIER ETAGE - PARKINGS
Honoraires à la charge du vendeur. Dans une copropriété de 25 lots. Aucune procédure n'est en cours. DPE en cours. Les informations sur les risques auxquels ce bien est exposé sont disponibles sur le site Géorisques : georisques.gouv.fr.