ANOVA IMMOBILIER vous propose à prix promoteur Le programme VIRTUO Rue d'Illzach68260 KINGERSHEIM
Date de livraison prévisionnelle : 1er trimestre 2025 Date d'actabilité : 2eme trimestre 2023 Fiscalité : Pinel /Résidence principale Nature du programme : Collectif
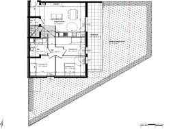
T4 en rez de jardin avec séjour / cuisine de 34,03m2, 3 chambres, une salle d'eau, une terasse de 20,68m2 et un jardin de 115,32m2.
Situation :
Programme immobilier neuf disponible pour votre résidence principale ou pour l'investissement immobilier En périphérie de Mulhouse, dans un quartier recherché et parfaitement desservi, les appartements vont du T2 au T4 avec stationnement et espaces extérieurs (balcons, terrasse ou jardins) généreux sauront vous séduire. Vous disposerez d'un séjour avec une cuisine ouverte. Chauffage au gaz
Proximité: Proche de Mulhouse Proche des transports Parc des gravières Ecole et collège Commerces
Pour plus de renseignements, Pour obtenir les plans et les lots disponibles, Contactez nous. ANOVA IMMOBILIER 07 688 50 100
Honoraires à la charge du vendeur. Dans une copropriété de 19 lots. Aucune procédure n'est en cours. DPE vierge. Les informations sur les risques auxquels ce bien est exposé sont disponibles sur le site Géorisques : georisques.gouv.fr.
Carte pro. CPI67012018000023425
78.78 m²
3 453 €
34 m²
4
2025
3
1
Oui (19 lots)
Contact Anova
Contacter gratuitement à l'aide du formulaire ci-dessous.