69170 TARARE - RARE - APPARTEMENT DUPLEX T4 - 90 M2 - 3 CHAMBRES - LUMINOSITÉ - 3EME ÉTAGE SANS ASCENSEUR - AUCUN TRAVAUX À PRÉVOIR - CENTRE VILLE - IMMEUBLE THIVEL - PARC ARBORÉ DE 15000 M2 UNIQUE - VUE AVEC EXPOSITION SUD, SUD OUEST - DPE : D - PROXIMITÉ COMMODITÉS/GARE/A89
? RARE à TARARE DUPLEX T4 de 90 m² avec PARC PRIVÉ de 1,5 ha Aucun travaux à prévoir ! ?
? EXCLUSIVITÉ PIETRAPOLIS Au coeur du centre-ville de Tarare, à deux pas des commerces, écoles, gare et A89, venez découvrir ce superbe appartement T4 en duplex de 90 m², niché au 3e étage d'un splendide immeuble haussmannien en pierre de taille datant de 1850, l'immeuble THIVEL, sans ascenseur.
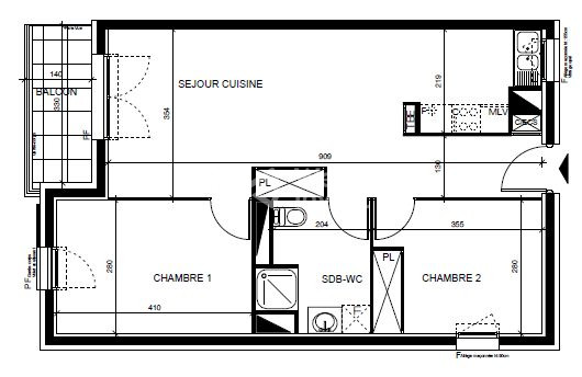
? LES + QUI FONT LA DIFFÉRENCE : Aucun travaux à prévoir Luminosité grâce à l'exposition Sud/Sud-Ouest Hauteur sous plafond type cathédrale 3 chambres dont 2 à l'étage Cuisine indépendante équipée de 17 m² Salon spacieux avec cachet de l'ancien Salle de bains et WC séparés Isolation performante + chauffage gaz à faible consommation Place de parking privative dans un parc sécurisé ? CADRE UNIQUE :Vivez au calme dans un parc arboré privé de 15 000 m², un véritable havre de paix en plein centre-ville ! Cèdres majestueux, pelouses immenses, sentiers bucoliques un environnement rare pour profiter de la nature au quotidien, en toute sérénité.
? Localisation idéale : Crèche, écoles, commerces et médecins à moins de 5 min à pied Gare SNCF et hôpital à 5 min en voiture Accès rapide à l'A89 (Lyon en 30 min) ? Infos pratiques : DPE : Classe D Charges de copropriété : 83 /mois Chauffage + électricité : env. 125 /mois Travaux d'escalier votés et déjà financés par le vendeur ? Visite virtuelle disponible ici : Cliquez pour visiter
? Coup de coeur assuré pour les amoureux de l'ancien avec confort moderne, au coeur d'un cadre de vie verdoyant et rare. ? Contactez-nous pour une visite sans tarder !
Jérôme BORNACHOT au 07 49 69 94 98 ou j.bornachot@pietrapolis.fr
Honoraires à la charge du vendeur. Dans une copropriété de 11 lots. Aucune procédure n'est en cours. Classe énergie D, Classe climat D Montant estimé des dépenses annuelles d'énergie pour un usage standard : entre 1390.00 et 1930.00 sur les années 2021, 2022 et 2023 (abonnements compris). Les informations sur les risques auxquels ce bien est exposé sont disponibles sur le site Géorisques : georisques.gouv.fr.