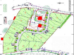
Sur la commune de JUJURIEUX, Virginie vous propose 11 terrains à bâtir viabilisés et vue dégagée!Parcelles de:530m2>75 500 euros.563m2>79 500 euros.610m2>85 500 euros.540m2>76 500 euros.656m2>91 500 euros.700m2>97 500 euros.800m2>110 500 euros.Contactez-moi, je vous accompagne à réaliser la construction de vos rêves!Honoraires à la charge du vendeur. Les informations sur les risques auxquels ce bien est exposé sont disponibles sur le site Géorisques : georisques.gouv.fr. Votre conseiller Aix'Plore Immo : Virginie PIROMALLIAgent commercial (Entreprise individuelle) RSAC 530 348 010 BOURG-EN-BRESSE
Contacter gratuitement à l'aide du formulaire ci-dessous.
Afficher le téléphone
Jujurieux 01640 - 0
...530m2>72 000 euros...
...Contenance 534 m2 dans un petit lotissement de 5 parcelles, libre constructeur...
...Contenance 585 m2 dans un petit lotissement de 5 parcelles, libre constructeur...
...563m2>79 500 euros...