Terrain à bâtir d'une surface de 334m2 situé à deux pas de la gare
Non viabilisé (raccordements à proximité)
Etude géotechnique réalisée
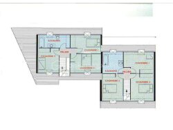
Projet de deux maisons jumelées déjà réalisé auprès de l'urbanisme avec avis favorable pouvant être modifié
Idéal investisseur
Cette annonce référence 252810 vous est présentée par votre agent commercial BSK Immobilier CÉLINE BOURGEOIS (EI) immatriculé au RSAC de ORLEANS (45000) sous le numéro 91322603100015.
Prix du bien : 26 000,00 €
Les honoraires d'agence sont à la charge du vendeur.
Les informations sur les risques auxquels ce bien est exposé sont disponibles sur le site Géorisques : www.georisques.gouv.fr
334 m²
78 €
334 m²
Contact Iad France - Bourgeois Celine
Contacter gratuitement à l'aide du formulaire ci-dessous.