Terrain à bâtir de 3200 m2 à Firminy (Quartier de Chazeau) S
Firminy 42700
0
Honoraires à la charge du vendeur.
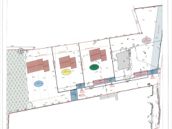
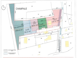
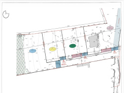
Homie-Immobilier À vendre Terrain à bâtir de 3200 m2 à Firminy (Secteur de Chazeau) Situé dans le paisible quartier de Chazeau, sur la commune de Firminy, ce terrain de 3200 m2 offre un cadre de vie idéal. Il se compose de :
1700 m2 constructibles, parfait pour la réalisation de vos projets de construction. 1500 m2 boisés non constructibles, apportant un charme naturel et un cadre verdoyant. Exposition Sud-Est, offrant une belle luminosité et un ensoleillement optimal. Un environnement calme et serein, idéal pour ceux qui recherchent la tranquillité.
Permis de construire accepté pour la réalisation de 3 maisons. Ce terrain est une véritable opportunité pour un projet résidentiel de qualité dans un secteur recherché, tout en étant proche de toutes commodités.
N'hésitez pas à nous contacter pour plus d'informations ou pour planifier une visite !
3200 m²
36 €
3200 m²
Contact BENBOUZID Marouane
Contacter gratuitement à l'aide du formulaire ci-dessous.