C'est à Saint-Martin-d'Hères, au 20 rue de la victoire, que se trouve cette parcelle constructible d'environ 400 m².
La parcelle seule est proposée à la vente au prix de 129 000  mais peut aussi être achetée dans le cadre de notre partenariat avec le constructeur de maisons individuelles EXEL HOME.
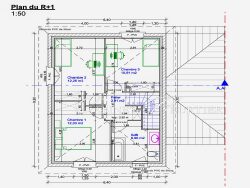
Notre partenaire constructeur vous propose la construction d'une maison individuelle au prix de 215 000 . Le projet présenté dans cette annonce n'est pas définitif et peut être adapté à vos besoins avant la demande de permis de construire.
Prix du terrain : 129 000  Prix de la maison présentée dans l'annonce : 215 000  Prix total du projet (hors frais de notaire) : 344 000 
Pour plus d'informations, merci de nous contacter aux coordonnées affichées sur l'annonce.
Honoraires à la charge du vendeur. Les informations sur les risques auxquels ce bien est exposé sont disponibles sur le site Géorisques : georisques.gouv.fr.