Goodshowcase

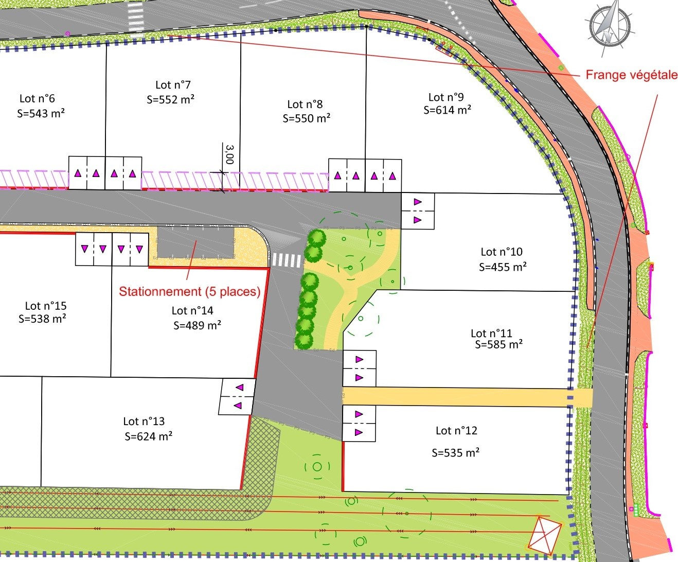
Vente terrain
55 000 €

Contact I@D France - Jérôme LIGONNIERE

Contacter gratuitement à l'aide du formulaire ci-dessous.


Afficher le téléphone


Annonces similaires

Vente terrain

Saintes 17100 - 0

53 900 €

...Idéalement situées entre la rue Raymond Tillaud et la rue Jean Poilane, ces parcelles bénéficient...

Voir l'annonce

Vente terrain

Yves 17340 - 0

49 990 €

...Tout à l'égout...

Voir l'annonce

Vente terrain

Pont-l'Abbé-d'Arnoult 17250 - 0

54 420 €

...Découvrez notre nouvelle opération de 34 lots "Chemin de Bessec" située chemin de...

Voir l'annonce

Vente terrain

Pont-l'Abbé-d'Arnoult 17250 - 0

51 200 €

...Découvrez notre nouvelle opération de 34 lots "Chemin de Bessec" située chemin de...

Voir l'annonce

Vente terrain

Archingeay 17380 - 0

52 700 €

...Ecole primaire à pied et toutes commodités à moins de 10 minutes (Saint Savinien à 8 minutes et...

Voir l'annonce