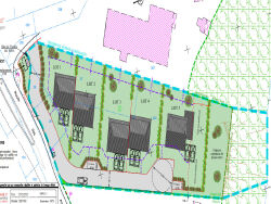
Annecy nord, secteur Bois de Frontenex, nous vous proposons une parcelle de 451m² libre constructeur, au sein d'un lotissement de 5 lots. Terrain plat. Proche des axes routiers et "voie des Aravis" et accès au Fier à pieds. Thierry DUCRET (EI) Agent Commercial - Numéro RSAC : 333 042 604 - .