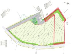
Nous proposons à la vente ce magnifique terrain constructible, actuellement en cours de viabilisation, situé sur la commune de SAIX(Tarn). Superficie du terrain disponible : Terrain n°5 : 2029 m² Environnement et commodités à proximité : Ce terrain bénéficie d'un cadre en pleine nature et calme, tout en étant proche des services essentiels : Supermarché Utile à Saïx Restaurants et commerces de proximité Pharmacie de Saïx, Pharmacie Sans (Soual), Pharmacie Lafayette Dautezac (Castres) Cabinets médicaux et professionnels de santé dans la commune et les environs Écoles, boulangeries, banques et services publics à moins de 10 minutes Distances des grandes villes alentours : - Castres à 7 km : environ 10 minutes en voiture - Mazamet à 25 km : environ 30 minutes - Albi à 45 km : environ 45 minutes - Toulouse à 75 km : environ 1h15 - Carcassonne à 70 km : environ 1h10 Ce terrain représente une belle opportunité pour un projet de construction dans une zone en développement, bien desservie et agréable à vivre. « Les informations sur les risques auxquels ce bien est exposé sont disponibles sur le site Géorisques : www.georisques.gouv.fr »
2029 m²
Sud
Ouest
Oui
Contact SELECTION HABITAT
Contacter gratuitement à l'aide du formulaire ci-dessous.