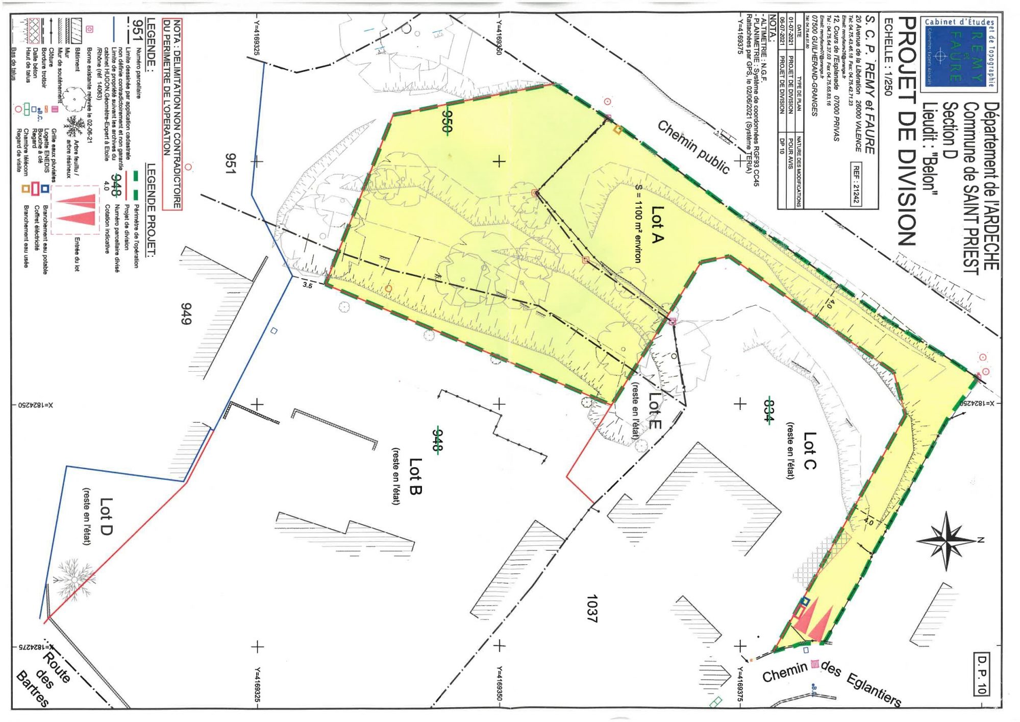
Terrain constructible de 877 m2 sur la commune de St Priest
Saint-Priest 07000
0
Honoraires à la charge du vendeur.
Terrain constructible de 877m2 à 5 mn du centre de Privas Vue dégagée
Superficie : 877m2
Exposition : Sud Ouest, idéale pour un bel ensoleillement et une luminosité agréable en fin de journée.
Cadre : Calme et paisible, tout en restant proche du village un équilibre parfait entre sérénité et commodité.
Réseaux disponibles (eau et électricité) en bordure de parcelle. Prévoir un terrassement.
Tout à l'égoût
Très bien situé à 5mn du centre ville de Privas, terrain rare à la vente.
Un projet, une question, contactez-moi pour une estimation rapide et offerte. Je vous accompagne selon vos besoins.SOLID IMMO l'Immobilier plus solidaire et responsable. www.solid-immo.com - Annonce rédigée et publiée par un Agent Mandataire -