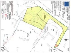
À vendre Terrain constructible de 1100 m² à Saint-Priest (quartier Belon)
Dans un environnement paisible et verdoyant, à seulement 5 km de Privas, venez découvrir ce beau terrain constructible de 1100 m² situé sur la commune de Saint-Priest, dans le quartier prisé de Belon.
Bénéficiant d'un cadre naturel privilégié, à proximité immédiate de la rivière et entouré de verdure, ce terrain offre un emplacement idéal pour concrétiser un projet de construction au calme, tout en restant proche de Privas.
L'école primaire du village se trouve à quelques minutes en voiture, ce qui en fait un lieu de vie parfait pour une famille en quête de nature et de tranquillité sans s'éloigner des services.
Les + : Quartier recherché Environnement nature Proximité de Privas (5 km) École dans le village Terrain avec faible pente et bien exposé Une belle opportunité pour construire la maison de vos rêves au coeur de l'Ardèche.
Ce terrain est proposé au prix de 85 000 (honoraires à la charge du vendeur).
Contactez-nous au 04.75.64.20.90.pour plus de renseignements.
Honoraires à la charge du vendeur. Les informations sur les risques auxquels ce bien est exposé sont disponibles sur le site Géorisques : georisques.gouv.fr.