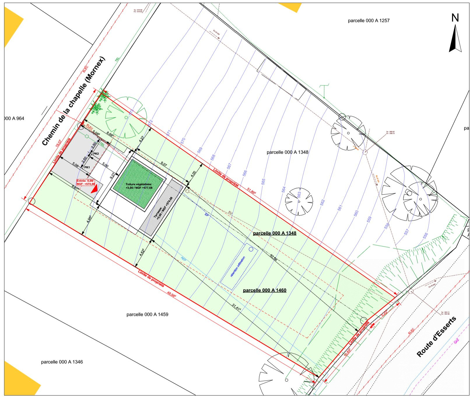
Terrain constructible non viabilisé de 1300m2, avec une vue Mont-Blanc. Avec une emprise au sol de 390 m² et un coefficient d'emprise au sol de 0,30, ce terrain vous offre une liberté architecturale pour réaliser vos projets.
Ce terrain est également divisible, offrant ainsi la possibilité de créer plusieurs lots constructibles. Idéal pour les investisseurs ou les familles souhaitant construire des maisons mitoyennes ou des petites copropriétés.
En plus de son emplacement privilégié, ce terrain est situé à proximité de toutes les commodités nécessaires pour une vie confortable et pratique. Vous pourrez profiter de la tranquillité de la montagne tout en ayant accès à des services essentiels.
Contactez nous dès aujourd'hui pour plus d'informations et pour organiser une visite de ce terrain exceptionnel.
Honoraires à la charge du vendeur. Les informations sur les risques auxquels ce bien est exposé sont disponibles sur le site Géorisques : georisques.gouv.fr.
1300 m²
200 €
1300 m²
Oui
Oui
Contact Agence Evasion Immobilier Sallanches - pays du Mont-Blanc
Contacter gratuitement à l'aide du formulaire ci-dessous.