Honoraires à la charge de l'acquéreur (Prix hors honoraires : 59620 euros).
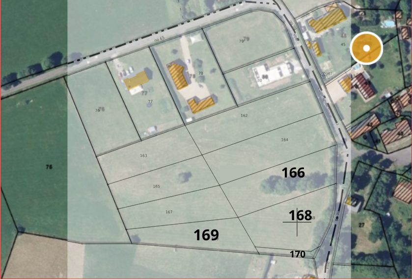
Nous proposons un grand terrain d'une superficie de 2710 m2, à bâtir dans la commune de Limons.
Le terrain est viabilisé et constructible à 75%. Il est possible de diviser ce terrain en deux parcelles ; il est divisible à partir de 1355 m2. C'est un terrain en partie clôturé (sans portail). Il est légèrement en pente et peut ainsi offrir une vue sur les montagnes. À la lisière du parc du Livradois-Forez et à 300 mètres d'altitude, Limons offre à ses habitants un cadre agréable, verdoyant et très calme, tout en permettant un accès facile aux principales autoroutes des environs, l'A71, l'A89 et l'A75. Limons et le petit village de Luzillat, à 5 km, ont une école maternelle et primaire. Le lycée le plus proche est à Thiers et le collège le plus proche est à Puy-Guillaume.
Puy-Guillaume, à seulement 3 km de Limons, est une petite ville qui offre toutes les commodités. Limons appartient à la communauté de communes de Limagne Bords d'Allier, dont la ville principale est Maringues. C'est une autre ville toute proche (10 minutes), où se trouvent de multiples commerces et services utiles au quotidien. Pas de frais d'agence, pour ce vaste terrain à construire à la campagne.
2710 m²
22 €
2710 m²
07/02/2025
Contact Promup
Contacter gratuitement à l'aide du formulaire ci-dessous.