? Terrain Constructible Lieu Idéal pour Concrétiser Votre Projet
Imaginez votre future maison au coeur d'un environnement calme et verdoyant Ce terrain constructible de 981 m² saura vous séduire par son potentiel et son cadre privilégié.
Surface constructible : 392 m² Emprise au sol : 196m² (CES 0,20) Terrain en pente, viabilisé et prêt à bâtir Raccordements existants : eau, électricité, télécommunications et fibre optique Assainissement déjà pris en charge
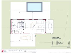
? Nos architectes se proposent de vous accompagner pour un projet clés en main avec par exemple la conception de cette villa (visuels fournis) d'environ 150m2 tout confort et piscine.
???? Une localisation pratique au quotidien
Arrêt de bus à 5 min à pied Crèches et collège à 5 min en voiture Commerces de proximité à 15 min à pied Restaurants à 10 min à pied Parc et espaces verts accessibles en 10 min de voiture
? Services essentiels à proximité
Hôpital à seulement 10 min en voiture Médecins généralistes à 15 min à pied
? Pourquoi choisir ce terrain ?
Parce qu'il allie tranquillité, commodités et qualité de vie. Une opportunité rare pour bâtir la maison de vos rêves dans un cadre serein et fonctionnel.
? Contactez-nous dès aujourd'hui pour plus d'informations et planifier une visite de ce terrain d'exception.
Honoraires à la charge du vendeur. Les informations sur les risques auxquels ce bien est exposé sont disponibles sur le site Géorisques : georisques.gouv.fr. . LA CREMERIE vous accompagne dans vos projets avec une solution Clés en Main.
1169 m²
312 €
1169 m²
Oui
Contact SIGNATURE REAL ESTATE
Contacter gratuitement à l'aide du formulaire ci-dessous.