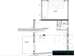
Au centre de Saint Genis Laval, venez découvrir ce terrain de 500 m² avec son permis de construire purgé et validé par la mairie pour une surface plancher de 154m² sur un étage. Emplacement idéal proche des commodités et des transports en commun.
Deux arbres limitent la construction et la division parcellaire.
Une servitude de passage doit être respectée afin de donner accès aux deux maisons du fond.
Opportunité rare à saisir!!
N'hésitez plus pour visiter ou faire estimer votre bien, prenez rendez-vous: https://calendly.com/s-riondet/30min?month=2024-03 Contactez Sébastien Riondet au 0647332216 ou s.riondet@pietrapolis.fr
Honoraires à la charge du vendeur. Les informations sur les risques auxquels ce bien est exposé sont disponibles sur le site Géorisques : georisques.gouv.fr.