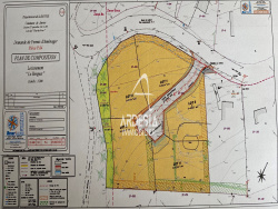
Sur la commune dARVILLARD, au lieu-dit La Chaz, cette parcelle de terrain constructible propose un emplacement idéal. Entièrement plat, il propose une exposition SUD et une vue magnifique sur les montagnes environnantes.
ARVILLARD est une commune située à la frontière entre la Savoie et l'Isère. La commune propose une belle qualité de vie, avec ses commerces de proximité, son école et sa vie associative. A deux pas, à Valgelon-La Rochette, vous trouverez toutes les autres commodités.
Hors lotissement, cette parcelle vous permettra de réaliser votre propre projet. Son chemin d'accès privé vous assure une desserte maîtrisée.
Une question ? Confiez votre projet immobilier à Clémence, joignable au 0629287456.
Honoraires à la charge du vendeur. Les informations sur les risques auxquels ce bien est exposé sont disponibles sur le site Géorisques : georisques.gouv.fr.
Votre conseiller 007 AGENT-i : Gérante - Clémence DEBROSSE Carte T 73012021000000034 RCP 0000022326940004
937 m²
104 €
937 m²
Oui
Contact 007 AGENT-i
Contacter gratuitement à l'aide du formulaire ci-dessous.