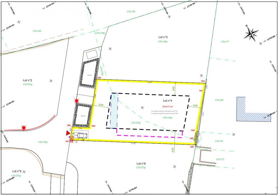
EXCLUSIVITE. Hors lotissement, libre constructeur. Entre la zone commerciale de Fray Redon et le centre du village, route de Gareoult. 4 Terrains constructibles plat de 451m² chacun: A, B, C et D (voir les 4 photos). Plan de division effectué par le géomètre et purgé de tous recours. Le terrain B en bas à gauche, est vendu. Bouches d'égout, électricité ,eau et telecom sont posées sur le terrain et ne sont pas reliées au collectif qui est en bordure sur la route. Conditions de construction vérifiées au Service Urbanisme qui est très efficace et très compétent. L'ancien PLU s'applique à ces 4 terrains: R+1 autorisé, Coefficient Emprise au Sol 15% hors garage et hors piscine soit une maison au sol de 67,65m² possible en rez-de-chaussée plus l'étage aussi de 67,65m² soit un total brut constructible de 135,30m² soit une surface habitable nette d'environ110-115m² soit 3 à 4 chambres. Construction maison à 4m en limite séparative, piscinable avec 2m en limite séparative pour la piscine. 60% d'espaces hors construction donc 40% soit 180,40m² qui restent pour: rez-de-chaussée, piscine, garage, terrasses bétonnées. Plantation de 2 arbres grandes tiges. Comme hors lotissement, vous n'êtes pas au soumis au règlement de lotissement et aux coûts du lotissement. Des vidéos du terrain et de son environnement sont disponibles via Whatsapp pour bien préparer votre visite. Sur place, l'implantation possible de la maison est piquetée afin de bien visualiser la zone de construction.
Honoraires à la charge du vendeur. Les informations sur les risques auxquels ce bien est exposé sont disponibles sur le site Géorisques : georisques.gouv.fr.