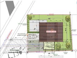
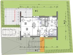
Terrain Constructible avec Permis de construire purgé et avec Vue Lac - Un Cadre Idéal pour Votre Rêve Imaginez-vous construire votre havre de paix sur ce terrain exceptionnel de 365 m², avec un permis de construire réalisé par un architecte d'environ 100 m² sur 2 niveaux, permis purgé de tout recours. Ce terrain idéalement situé, a proximité de la frontière.
Profitez d'une vue imprenable sur le lac, un spectacle naturel qui embellira chaque jour de votre vie. Avec un permis de construire déjà obtenu, vous pouvez concrétiser vos projets immobiliers sans délai.
Ce terrain est bien plus qu'un simple espace constructible, ce projet ambitieux vous démarquera dans cadre de vie exceptionnel.
À seulement 10 minutes à pied, vous trouverez une maternelle, une école élémentaire, une alimentation générale, plusieurs restaurants. De plus, le bus est accessible en 10 minutes à pied, facilitant vos déplacements quotidiens. Le terrain est également éligible à l'internet haut débit, garantissant une connectivité optimale.
Ne manquez pas cette opportunité unique de posséder un terrain de luxe avec une vue lac. Contactez-nous dès aujourd'hui pour plus d'informations et pour transformer ce terrain en votre futur foyer de rêve.
Honoraires à la charge du vendeur. Les informations sur les risques auxquels ce bien est exposé sont disponibles sur le site Géorisques : georisques.gouv.fr.
Carte pro. CPI7401 2018 000 035 952
317 m²
694 €
317 m²
Oui
Contact PEILLEX GESTION
Contacter gratuitement à l'aide du formulaire ci-dessous.