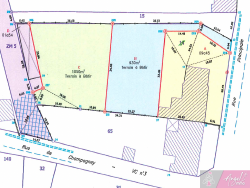
L'agence Angel'Immo vous propose deux terrains constructibles situés dans le charmant village de Dammartin-Marpain, à proximité immédiate de la commune pittoresque de Pesmes. Ces deux parcelles offrent de belles surfaces planes et exploitables :
Lot 1 : 1 050 m2 Prix : 35 000 EUR
Lot 2 : 930 m2 Prix : 35 000 EUR
Les atouts :
Environnement calme et verdoyant
Cadre de vie paisible, idéal pour un projet familial
Situation géographique intéressante entre Dole et Gray
Village agréable à seulement deux pas des écoles
Ces terrains constituent une opportunité pour concrétiser votre projet de construction dans un cadre de campagne authentique. Possible d'acquérir les deux terrains. Contactez Angel'Immo dès aujourd'hui pour plus d'informations ou pour organiser une visite !
930 m²
38 €
930 m²
Contact Jean Christophe BOURSET
Contacter gratuitement à l'aide du formulaire ci-dessous.